PORTFOLIO

Planning Application Projects

Change of Use

12-15 TOWN SQUARE ERITH 

PROJECT TYPE: CHANGE OF USE FROM CLASS E (COMMERCIAL) TO CLASS F1 (NON RESIDENTIAL INSTITUTION) 

 

74-74A WOODSIDE GREEN

CHANGE OF USE OF GROUND FLOOR FROM A1 TO C3 – SINGLE STOREY REAR EXTENSION & CONVERSION INTO 3 SEPARATE  UNITS

205 MAPLE ROAD PENGE BROMLEY 

PROJECT TYPE:  CHANGE OF USE OF A RETAIL UNIT TO A HOT FOOD TAKEAWAY (RETROSPECTIVE) & INSTALLATION OF EXTRACTION SYSTEM 

 

134 SOUTH ROAD 

PROJECT TYPE: CHANGE OF USE FROM CLASS E (COMMERCIAL) TO A HOT FOOD TAKEAWAY SUI GENERIS

 

THE AYLESHAM CENTER LONDON

PROJECT TYPE: CHANGE OF USE OF THE GROUND FLOOR FROM CLASS A1 (SHOPS) TO MIXED CLASS A1 AND A3 (RESTAURANT AND CAFE) 

THE MALL, WALTHAMSTOW LONDON

PROJECT TYPE: CHANGE OF USE FROM RETAIL SHOP (CLASS E(a)) TO RESTAURANT USE (CLASS E(b)) AND INSTALLATION OF EXTRACTION  SYSTEM

16 EXMOUTH MARKET LONDON 

CHANGE OF USE FROM PHARMACY TO RESTAURANT & INSTALLATION OF EXTRACTION SYSTEM & NEW AWNING ABOVE SHOPFRONT

175 WELLINGBOROUGH ROAD

CHANGE OF USE OF FIRST AND SECOND FLOORS

 

 

4 FRONT ST, CONSETT

CHANGE OF USE FROM RESIDENTIAL C3 TO RETAIL CLASS E (CAFE)

 

 

Extension

175 WELLINGBOROUGH ROAD

SINGLE STOREY EXTENSION, THREE STOREY INFILL EXTENSIONS AND NEW ROOAF FOR PART OF THE NEW STOREY EXTENSION (RETROSPECTIVE)

8 HEATH PARK DRIVE LONDON

PROJECT TYPE: RESIDENTIAL
PLANNING APPLICATION: DEMOLITION OF CONSERVATORY & REPLACEMENT WITH DOUBLE STOREY EXTENSION

12 WINSTANLEY WAY 

RETROSPECTIVE SINGLE STOREY LOBBY EXTENSION & ALTERATIONS TO GROUND FLOOR EXTERNAL WALLS, NEW METAL CLADDING, REAR DOOR & BIN AREA

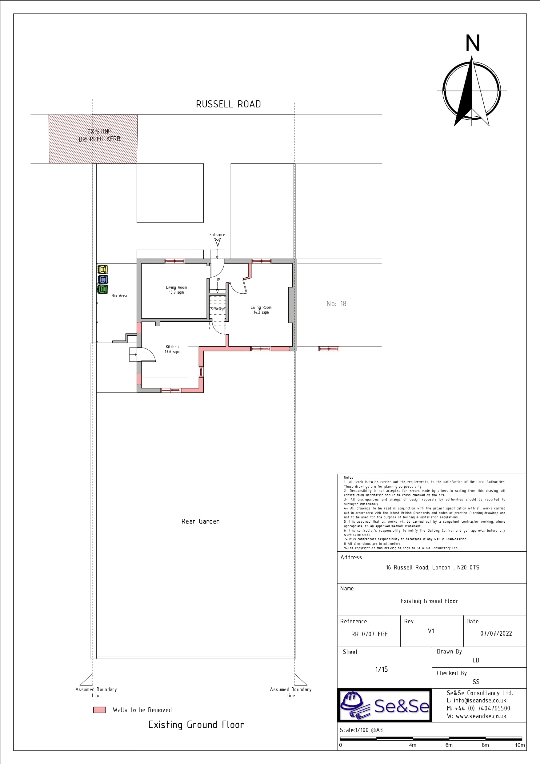
16 RUSSELL ROAD LONDON

PART SINGLE, PART TWO STOREY REAR EXTENSION. NEW FRONT PORCH.

 

 

NORRIS HOUSE HADLEIGH IPSWICH

ERECTION OF SINGLE STOREY FRONT LOBBY EXTENSION & BLOCKING UP OF SELECTED WINDOWS (RETROSPECTIVE)

 

283 HIGH STREET BENFLEET

ERECTION OF SINGLE STOREY REAR EXTENSION FOR COLD ROOM

 

 

109 PARKLANE CARSHALTON

CONVERSION OF LOFT SPACE INVOLVING A DORMER EXTENSION AT REAR & ROOFLIGHTS TO FRONT ROOFSLOPE

 

109 PARKLANE CARSHALTON

PRIOR APPROVAL FOR A SINGLE STOREY REAR (6M) 

 

 

4 RUSSELL ROAD

SINGLE STOREY REAR EXTENSION 

 

 

Shop Front & Advertisement Consent

12 WINSTANLEY WAY BASILDON

PROJECT TYPE: COMMERCIAL
PLANNING APPLICATION: NEW INTERNALLY ILLUMINATED FASCIA SIGNS

 

154 LADBROKE GROVE

PROJECT TYPE: COMMERCIAL

PLANNING APPLICATION: SIGNAGE

 

 

104 HIGHBURY PARK LONDON

PROJECT TYPE:COMMERCIAL

PLANNING APPLICATION: ADVERTISEMENT CONSENT

 

134 SOUTH ROAD 

PROJECT TYPE: COMMERCIAL

PLANNING APPLICATION: ADVERTISEMENT CONSENT

 

606 UXBRIDGE ROAD HAYES

PROJECT TYPE: COMMERCIAL

PLANNING APPLICATION: ADVERTISEMENT CONSENT

 

8 FULHAM BROADWAY LONDON

PROJECT TYPE: COMMERCIAL

PLANNING APPLICATION: INSTALLATION OF SHOP FRONT

 

49 HIGH STREET, NORTH EAST HAM 

ALTERATIONS TO SHOPFRONT, INSTALLATION OF NEW BLACK PAINTED ALUMINIUM DOUBLE GLAZED DOORS

 

8 FULHAM BROADWAY LONDON

DISPLAY OF AN INTERNALLY ILLUMINATED FASCIA SIGN 7 EXTERNALLY ILLUMINATED DOUBLE SIDED HANGING SIGN

 

202 HAVERSTOCK HILL

DISPLAY OF 1X EXTERNALLY ILLUMINATED (TROUGH LIT) FASCIA LETTERING SIGN

 

NORRIS HOUSE HADLEIGH

ADVERTISEMENT CONSENT

 

 

240 PORTOBELLO ROAD

ADVERTISEMENT CONSENT

 

 

329 -331 GRAY’S INN ROAD

ERECTION OF FASCIA SIGNAGE WITH INTERNALLY ILLUMINATED LETTERING & PROJECTING SIGNAGE

 

Extraction System

High Discharge Extraction Projects

41-43, LISSON GROVE

PROJECT TYPE: COMMERCIAL 

PLANNING APPLICATION: EXTRACTION SYSTEM

 

173 UPPER TOOTING ROAD 

PROJECT TYPE: COMMERCIAL

PLANNING APPLICATION: EXTRACTION SYSTEM

 

771 HIGH ROAD 

PROJECT TYPE: COMMERCIAL
PLANNING APPLICATION: REPLACEMENT OF EXTRACTION SYSTEM WITH DUCT TO THE REAR

154 LADBROKE GROVE 

PROJECT TYPE: COMMERCIAL
PLANNING APPLICATION: EXTRACTION SYSTEM, SHOP FRONT ALTERATION AND NEW BIN AREA

28 COMMERCIAL ROAD

PROJECT TYPE: COMMERCIAL

PLANNING APPLICATION: DRAINAGE

 

145 LADBROKE GROVE

PROJECT TYPE: COMMERCIAL

PLANNING APPLICATION: EXTRACTION SYSTEM

 

24 STEPHENSON STREET

PROJECT TYPE: COMMERCIAL

PLANNING APPLICATION: EXTRACTION SYSTEM

 

HOUNSLOW MALL

PROJECT TYPE: COMMERCIAL

PLANNING APPLICATION: EXTRACTION SYSTEM

 

357 ROMAN ROAD

PROJECT TYPE: COMMERCIAL

PLANNING APPLICATION: EXTRACTION SYSTEM

 

69 FERNHEAD ROAD

PROJECT TYPE: COMMERCIAL

PLANNING APPLICATION: EXTRACTION SYSTEM

 

NORRIS HOUSE

PROJECT TYPE: COMMERCIAL

PLANNING APPLICATION: EXTRACTION SYSTEM

 

203 MILE END ROAD 

PROJECT TYPE: COMMERCIAL 

PLANNING APPLICATION: EXTRACTION SYSTEM

 

SITE 35 KIOSK EXCHANGE

PROJECT TYPE: COMMERCIAL

PLANNING APPLICATION: DISCHARGE OF CONDITION

3 HIGH STREET

PROJECT TYPE: COMMERCIAL

PLANNING APPLICATION: EXTRACTION SYSTEM 

 

166 STOKE NEWINGTON ROAD

PROJECT TYPE: COMMERCIAL

PLANNING APPLICATION: EXTRACTION SYSTEM 

 

187 MORLAND ROAD 

PROJECT TYPE: COMMERCIAL

PLANNING APPLICATION: EXTRACTION SYSTEM 

 

 THE GRIFFIN CENTRE 

PROJECT TYPE: COMMERCIAL

PLANNING APPLICATION: EXTRACTION SYSTEM 

 

18 GREENCOAT ROW 

PROJECT TYPE: COMMERCIAL

PLANNING APPLICATION: EXTRACTION SYSTEM 

 

370 UPPER RICHMOND

PROJECT TYPE: COMMERCIAL

PLANNING APPLICATION: EXTRACTION SYSTEM 

 

644 HIGH ROAD LEYTONSTONE

PROJECT TYPE: COMMERCIAL

PLANNING APPLICATION: EXTRACTION SYSTEM 

 

9 HARPSFIELD BROADWAY 

PROJECT TYPE: COMMERCIAL

PLANNING APPLICATION: EXTRACTION SYSTEM 

 

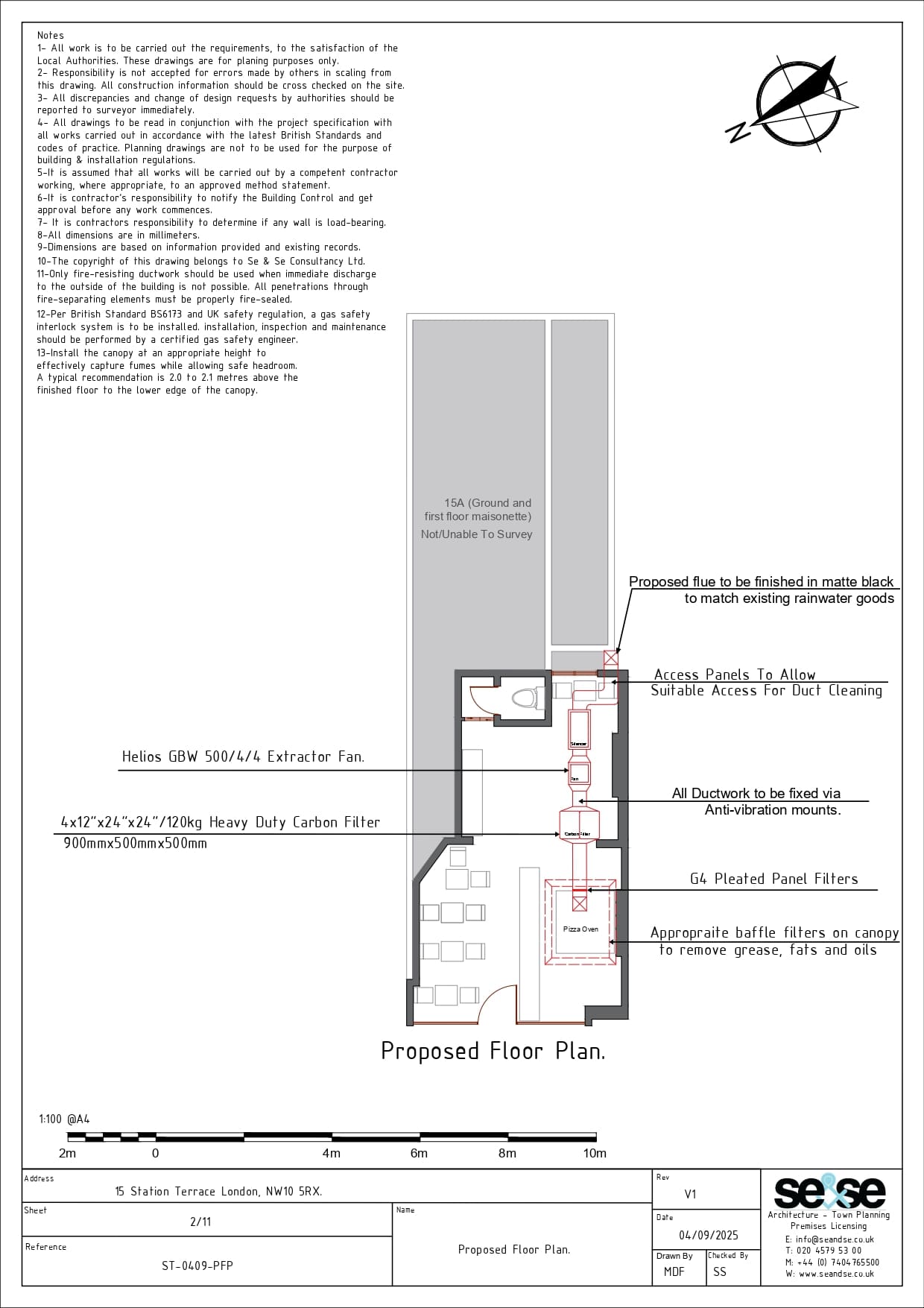
15 STATION TERRACE LONDON

PROJECT TYPE: COMMERCIAL

PLANNING APPLICATION: EXTRACTION SYSTEM 

 

19-21 PITFIELD STREET LONDON

PROJECT TYPE: COMMERCIAL

PLANNING APPLICATION: EXTRACTION SYSTEM 

 

28-30 HIGH STREET

PROJECT TYPE: COMMERCIAL

PLANNING APPLICATION: EXTRACTION SYSTEM 

 

41 CAMBERWELL CHURCH STREET

PROJECT TYPE: COMMERCIAL

PLANNING APPLICATION: EXTRACTION SYSTEM 

 

68 BELLEGROVE ROAD

PROJECT TYPE: COMMERCIAL

PLANNING APPLICATION: EXTRACTION SYSTEM 

 

7B HIGH STREET HARROW

PROJECT TYPE: COMMERCIAL

PLANNING APPLICATION: EXTRACTION SYSTEM 

 

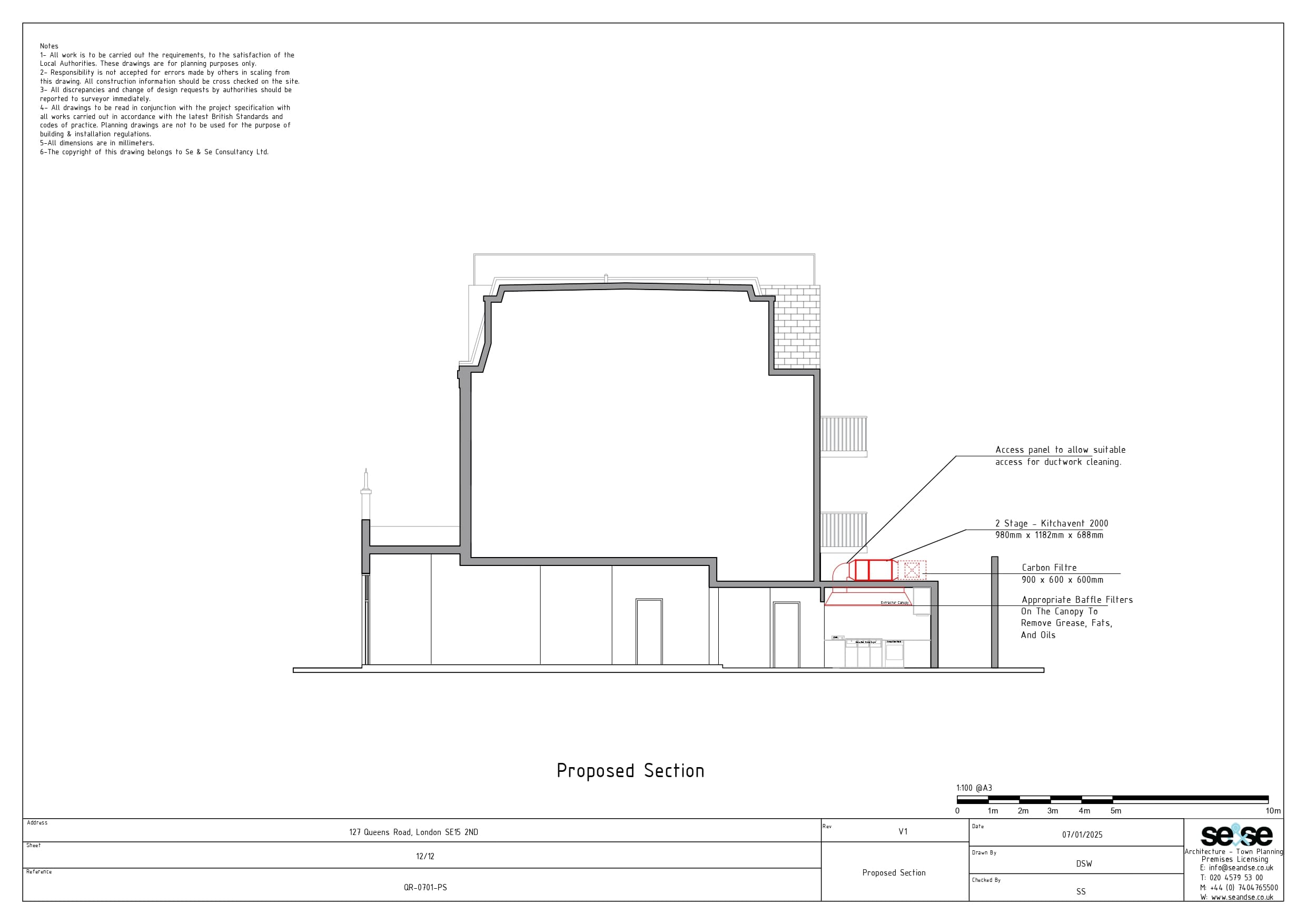
127 QUEENS ROAD LONDON

PROJECT TYPE: COMMERCIAL

PLANNING APPLICATION: EXTRACTION SYSTEM 

 

202 HAVERSTOCK HILL

PROJECT TYPE: COMMERCIAL

PLANNING APPLICATION: EXTRACTION SYSTEM

 

215 LONDON ROAD RADLEIGH

PROJECT TYPE: COMMERCIAL

PLANNING APPLICATION: EXTRACTION SYSTEM

 

545 CRANBROOK ROAD 

PROJECT TYPE: COMMERCIAL

PLANNING APPLICATION: EXTRACTION SYSTEM

 

12 SOUTHERNHAY BASILDON

PROJECT TYPE: COMMERCIAL

PLANNING APPLICATION: EXTRACTION SYSTEM

 

283 HIGH ROAD BENFLEET

PROJECT TYPE: COMMERCIAL

PLANNING APPLICATION: EXTRACTION SYSTEM

 

571 BRISTOL ROAD

PROJECT TYPE: COMMERCIAL

PLANNING APPLICATION: EXTRACTION SYSTEM

 

24 THE HORNET 

PROJECT TYPE: COMMERCIAL

PLANNING APPLICATION: EXTRACTION SYSTEM

 

342 NORTH END ROAD

PROJECT TYPE: COMMERCIAL

PLANNING APPLICATION: EXTRACTION SYSTEM

 

2-4 WEST STREET

PROJECT TYPE: COMMERCIAL

PLANNING APPLICATION: EXTRACTION SYSTEM

 

1074 LONDON ROAD

PROJECT TYPE: COMMERCIAL

PLANNING APPLICATION: EXTRACTION SYSTEM

 

Low Discharge Extraction Projects

28 HACKNEY ROAD

PROJECT TYPE: COMMERCIAL

PLANNING APPLICATION: EXTRACTION

 

Premises Licence Projects

154 LADBROKE GROVE

PROJECT TYPE: COMMERCIAL

LICENSING: TABLES & CHAIRS 

 

101 QUEENSWAY 

PROJECT TYPE: COMMERCIAL

LICENSING: PREMISES LICENSE TO SELL ALCHOHOL

 

93 UPPER TOOTING ROAD

PROJECT TYPE: COMMERCIAL

LICENSING: PREMISES LICENSE TO SELL ALCOHOL

 

TRENT CAFE COCKFOSTERS RD

PROJECT TYPE: COMMERCIAL

LICENSING: PREMISES LICENSE TO SELL ALCOHOL

 

357 ROMAN ROAD

PROJECT TYPE: COMMERCIAL

LICENSING: PREMISES LICENSE TO SELL ALCHOHOL 

22-24 CAMDEN PASSAGE

PROJECT TYPE: COMMERCIAL

LICENSING: PREMISES LICENSE TO SELL ALCHOHOL

255 SEVEN SISTERS ROAD

PROJECT TYPE: COMMERCIAL 

LICENSING: LATE NIGHT REFRESHMENT 

 

30 GOLD STREET 

PROJECT TYPE: COMMERICAL

LICENSING

 

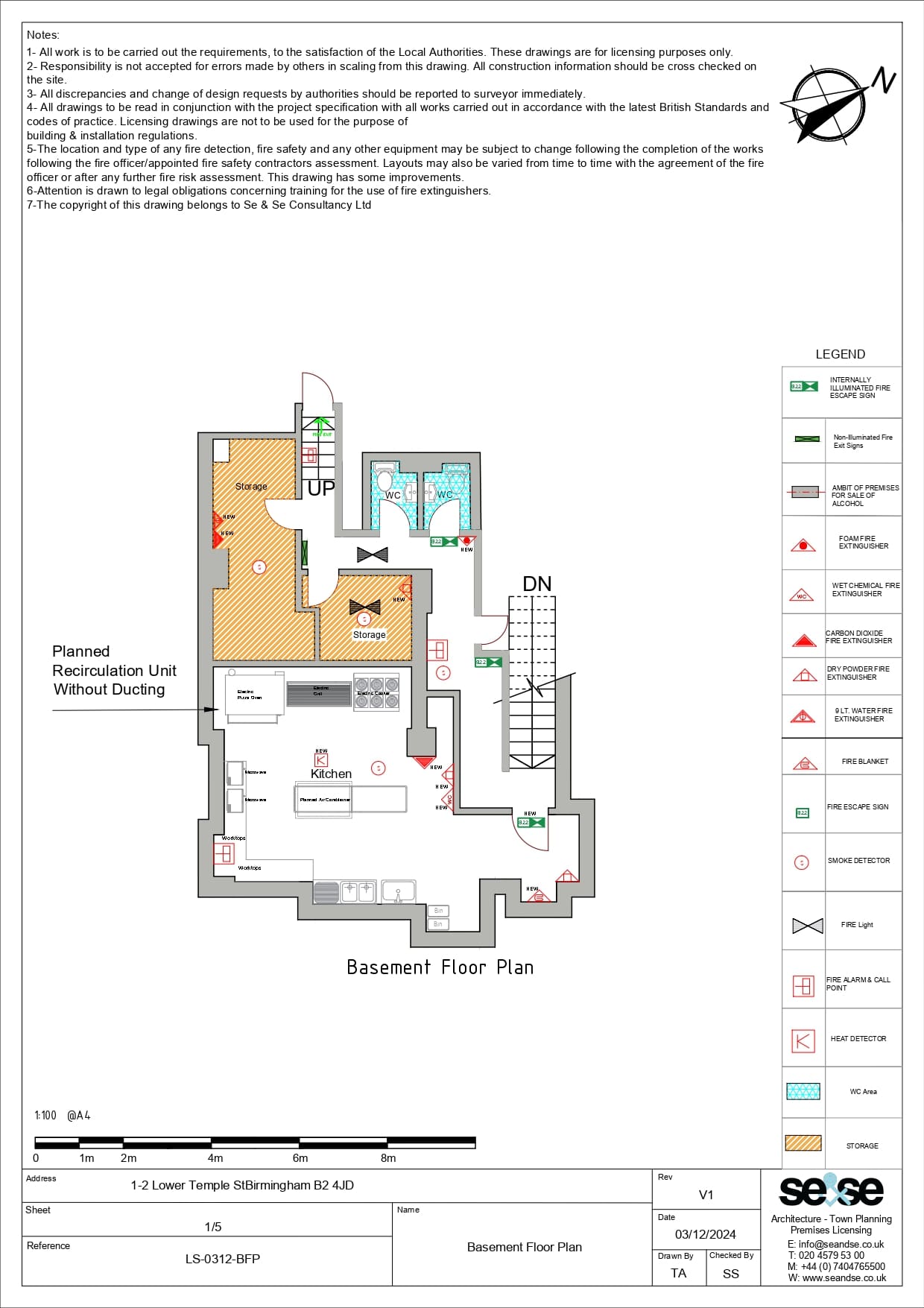
1-2 LOWER TEMPLE 

PROJECT TYPE: COMMERCIAL
DRAWINGS FOR PREMISES LICENCE

 

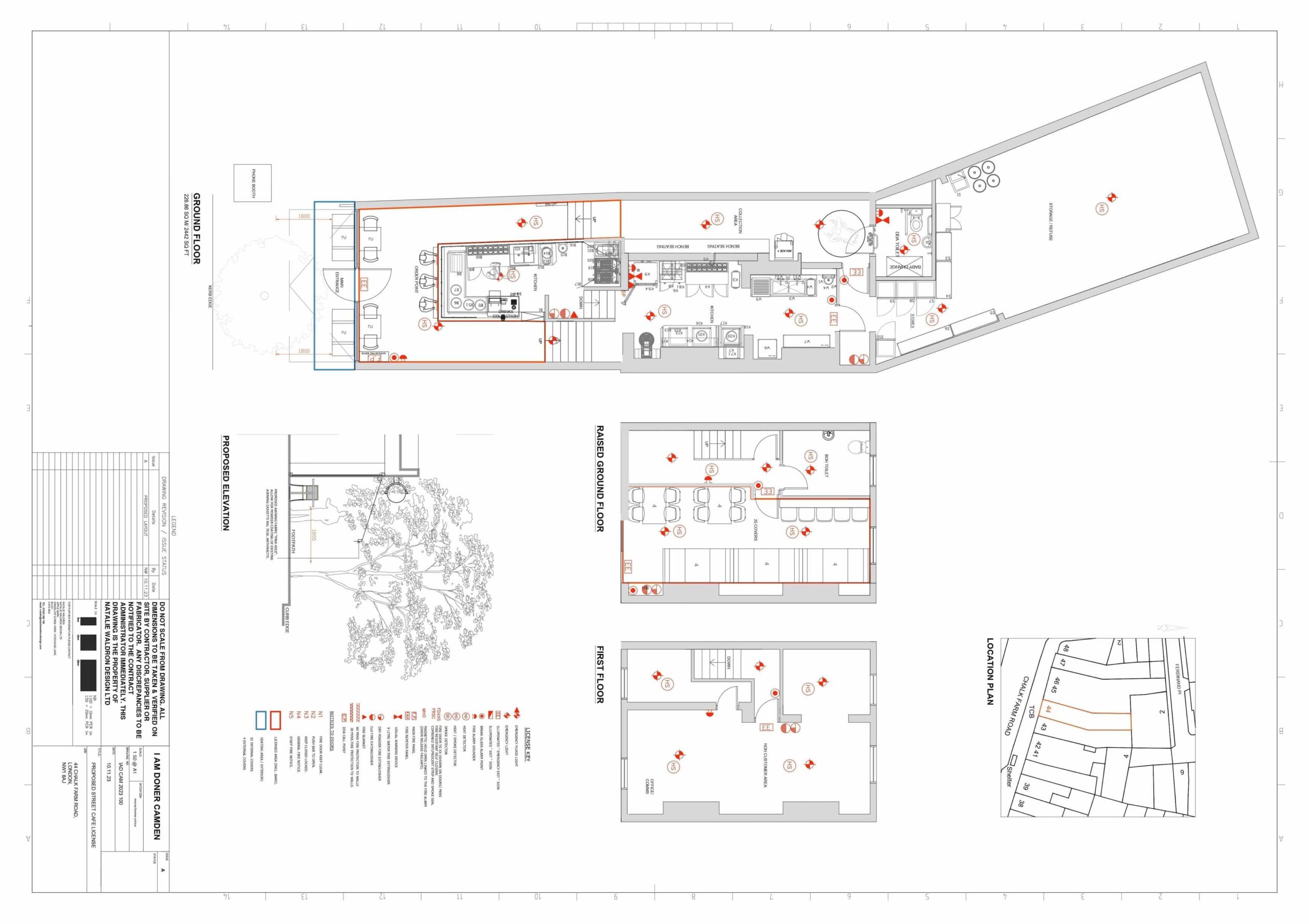
44 CHALK FARM ROAD LONDON  

PROJECT TYPE: COMMERCIAL
TABLES AND CHAIRS LICENCE

 

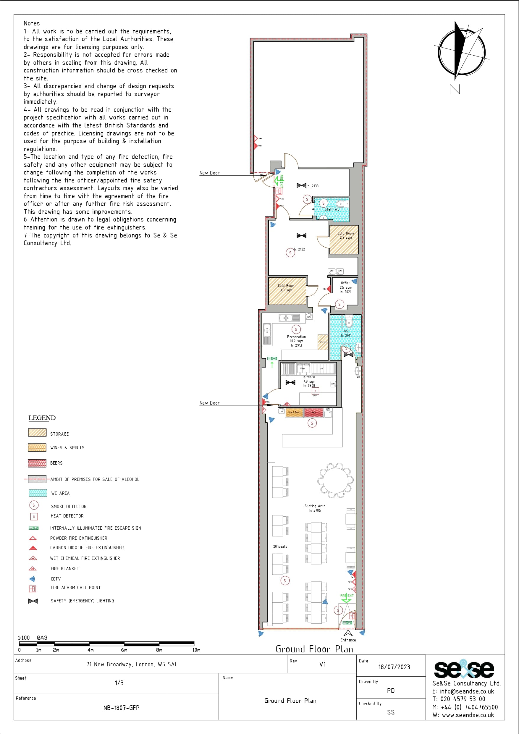
71 NEW BROADWAY LONDON

PROJECT TYPE: COMMERCIAL
DRAWING SERVICE FOR PREMISES LICENCE

 

109 -111 OLD CHURCH 

PROJECT TYPE: COMMERCIAL
DRAWING SERVICE FOR PREMISES LICENCE

 

24 STEPHENSON ST LONDON 

PROJECT TYPE: COMMERCIAL

PREMISES LICENCE

 

191A UXBRIDGE ROAD

PROJECT TYPE: COMMERCIAL

SEATING AREA & REMOVAL OF SHUTTER

 

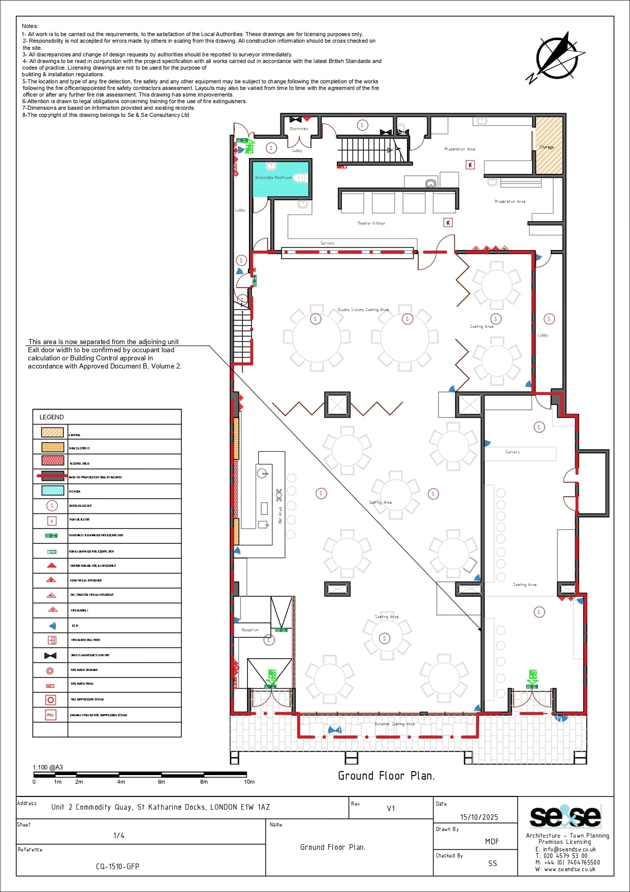
UNIT 2 COMMODITY QUAY

PROJECT TYPE: COMMERCIAL

PREMISES LICENCE APPLICATION

 

101 HIGH STREET BEDFORD

PROJECT TYPE: COMMERCIAL

PREMISES LICENCE APPLICATION

 

3-5 THE COLONNADE

PROJECT TYPE: COMMERCIAL

PREMISES LICENCE APPLICATION

 

Building Control Projects

36-38 HIGH ST. TONBRIDGE

PROJECT TYPE:

BUILDING CONTROL

 

UNIT 10 BRIXTON STATION

PROJECT TYPE:

BUILDING CONTROL

 

3D Drawings

173 UPPER TOOTING ROAD

PROJECT TYPE:

3D DRAWING

 

HOUNSLOW MALL

PROJECT TYPE:

3D DRAWING