 
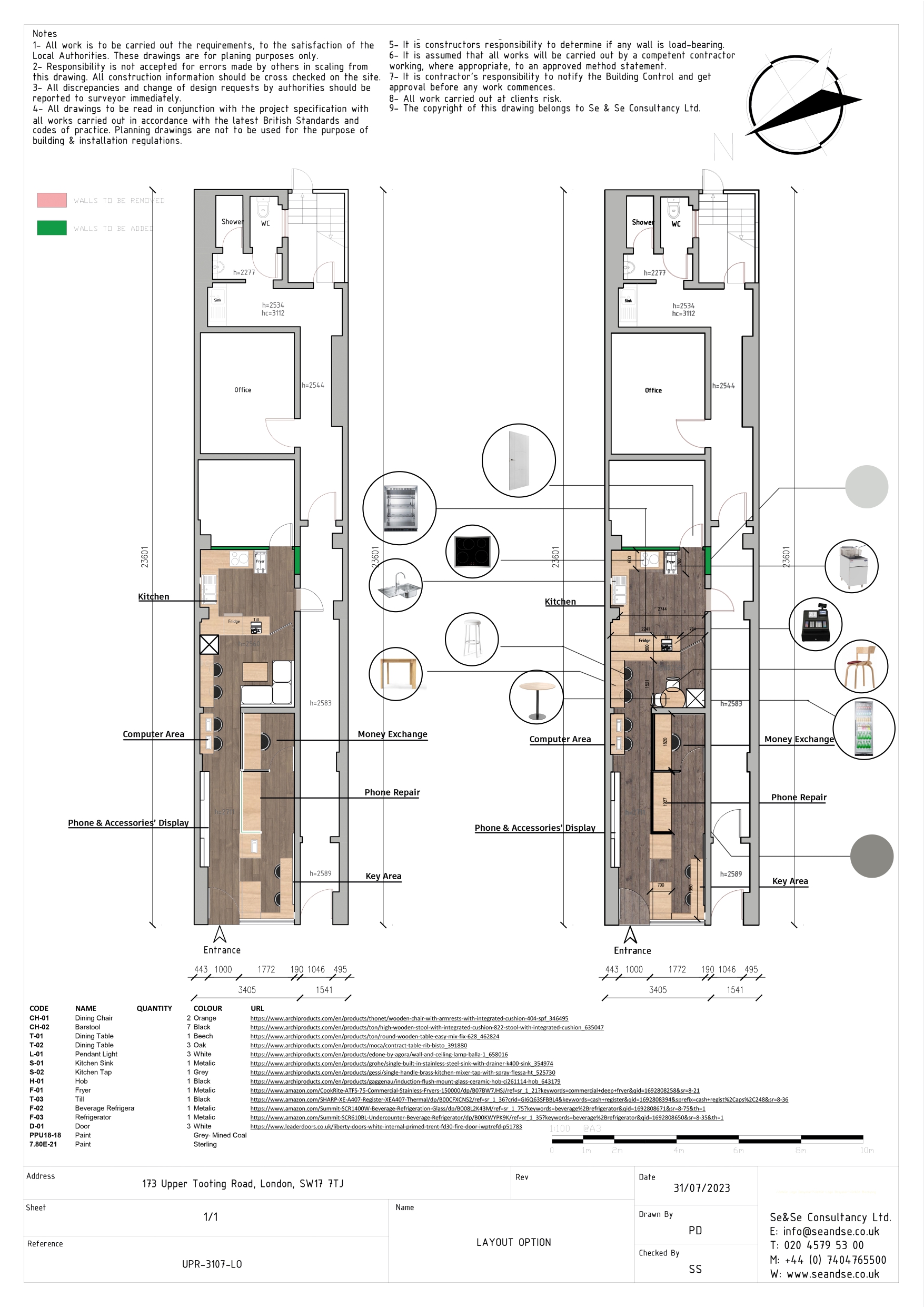
					Project Address
173 Upper Tooting Road, London, SW17 7TJ
 
					Council
Wandsworth Council
 
					Project Type & Year
Commercial & 2023
 
					Project Details
The proposal involves; architectural design and 3D visualization of a new phone store/café establishment.
We produced architectural drawings and variety of 3D visualizations.

 
                                                               
                                                               
                                                               
                                                               
                                                               
                                                              