 
					Project Address
UNIT 4 The Griffin centre market place Kingston Upon Thames
 
					Council
The Royal Borough of Kingston upon Thames
 
					Project Type & Year
Commercial & 2023
 
					Project Description
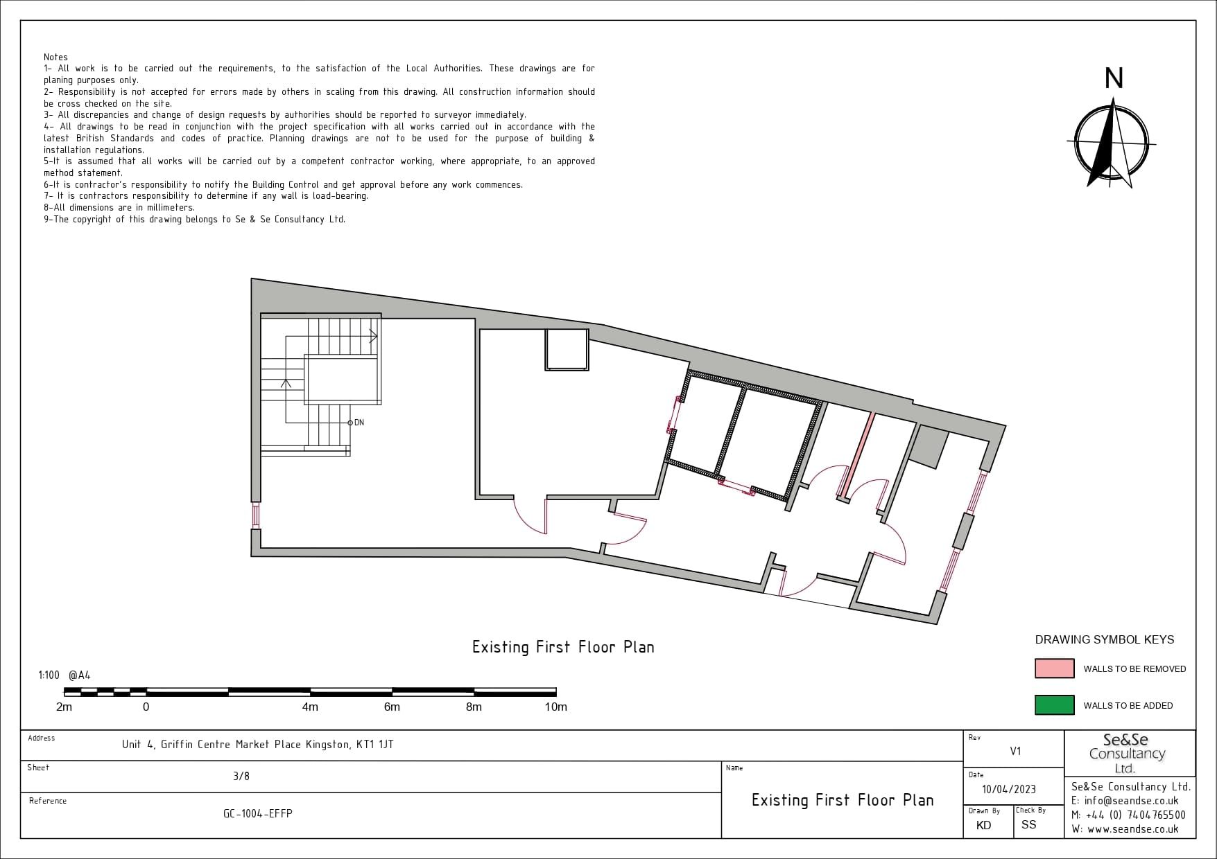
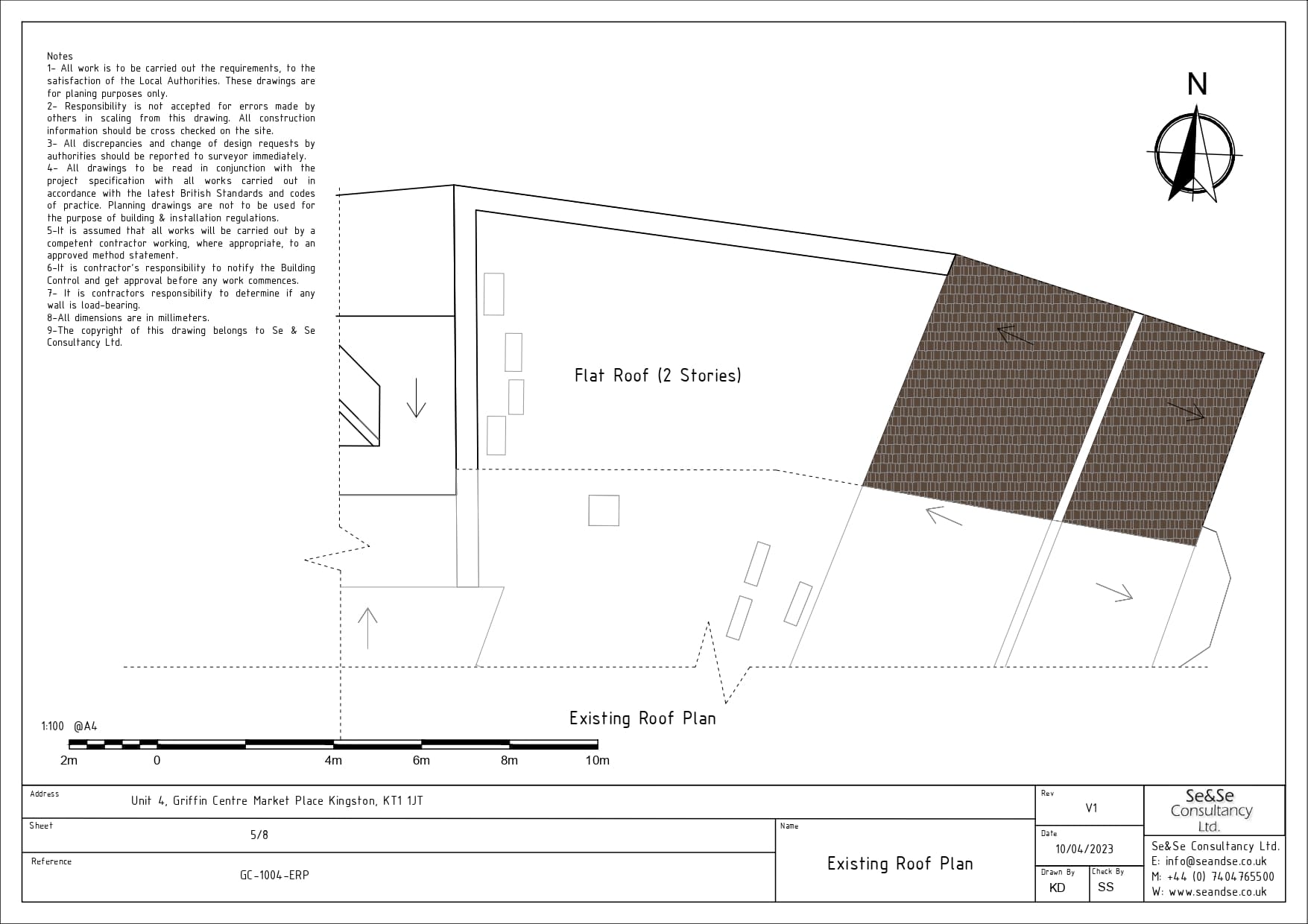
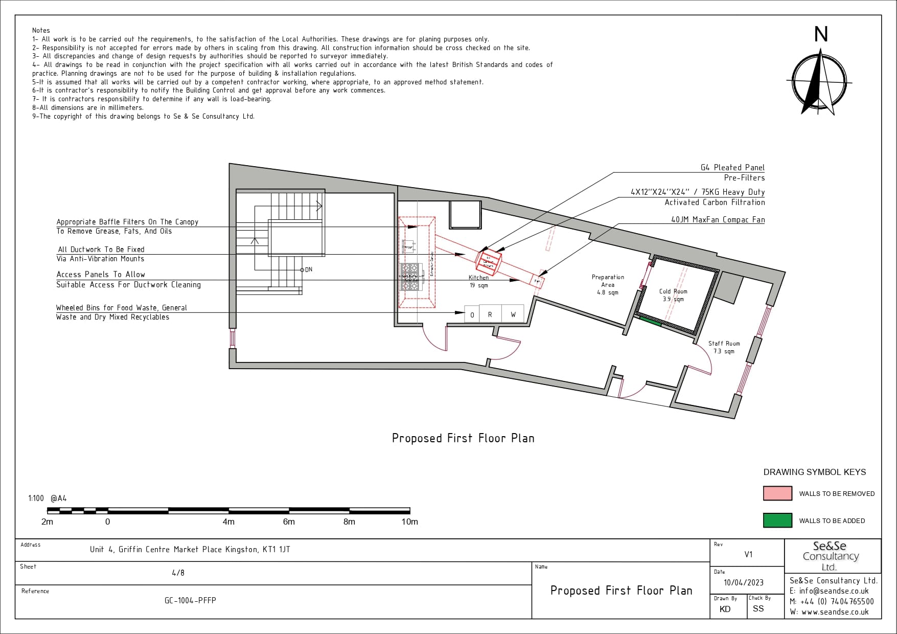
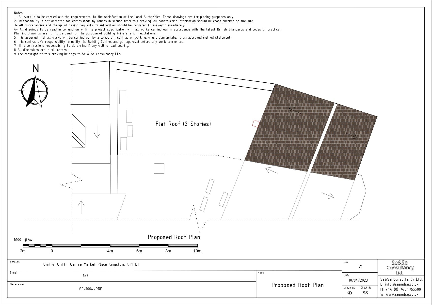
We successfully obtained Listed Building Consent from the Royal Borough of Kingston upon Thames for the installation of an extraction system and associated works at Unit 4, The Griffin Centre – a heritage asset located in a conservation area. This sensitive project required careful coordination with conservation officers to ensure the proposals respected the character and significance of the listed building.
Key documents prepared and submitted included a Full Extraction Report, Noise Impact Assessment, and a comprehensive suite of architectural plans: Block Plan, OS Location Plan, Proposed Floor Plans, Rear Elevation, and Roof Plan. The application demonstrated a balance between modern functionality and heritage preservation, resulting in full approval under the Planning (Listed Buildings and Conservation Areas) Act 1990
Planning reference:
23/01359/LBC

 
                                                               
                                                               
                                                               
                                                               
                                                               
                                                               
                                                               
                                                               
                                                               
                                                              