 
					Project Address
46a The Mall Walthamstow- Selborne Rd, London E17 7JR
 
					Council
Waltham Forest Council
 
					Project Type & Year
Commercial & 2024
 
					Project Description
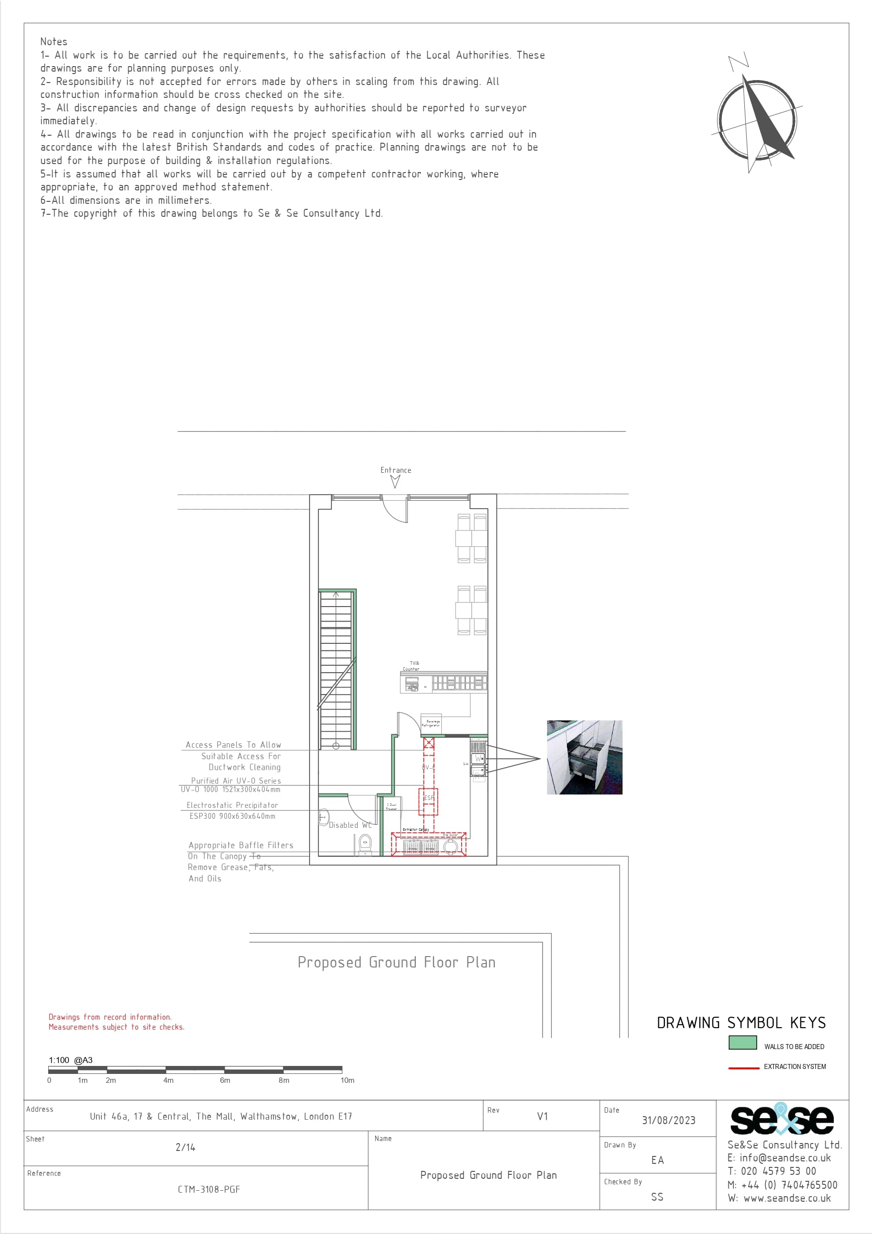
We obtained planning permission for a redevelopment at 46A Selborne Walk, London, including changes to internal layouts and external elevations. The approved plans cover comprehensive updates such as new floor plans, roof alterations, and updated front, side, and rear elevations. Our team managed the entire application process, including detailed architectural drawings, specification documentation, and liaison with the local planning authority to ensure compliance and successful approval.
Planning reference: 240468

 
                                                               
                                                               
                                                               
                                                               
                                                               
                                                               
                                                               
                                                               
                                                               
                                                               
                                                               
                                                               
                                                               
                                                               
                                                               
                                                              