 
					Project Address
175 Wellingborough Road, Northampton, NN1 4DX
 
					Council
West Northamptonshire Council
 
					Project Type & Year
Residential & 2022
 
					Project Description
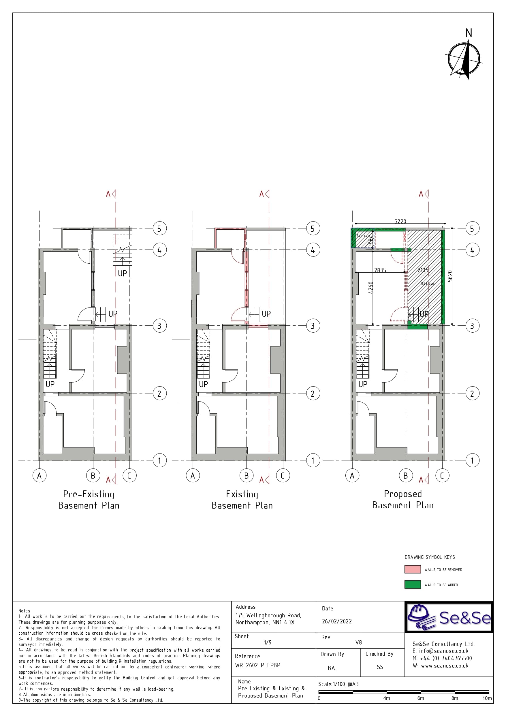
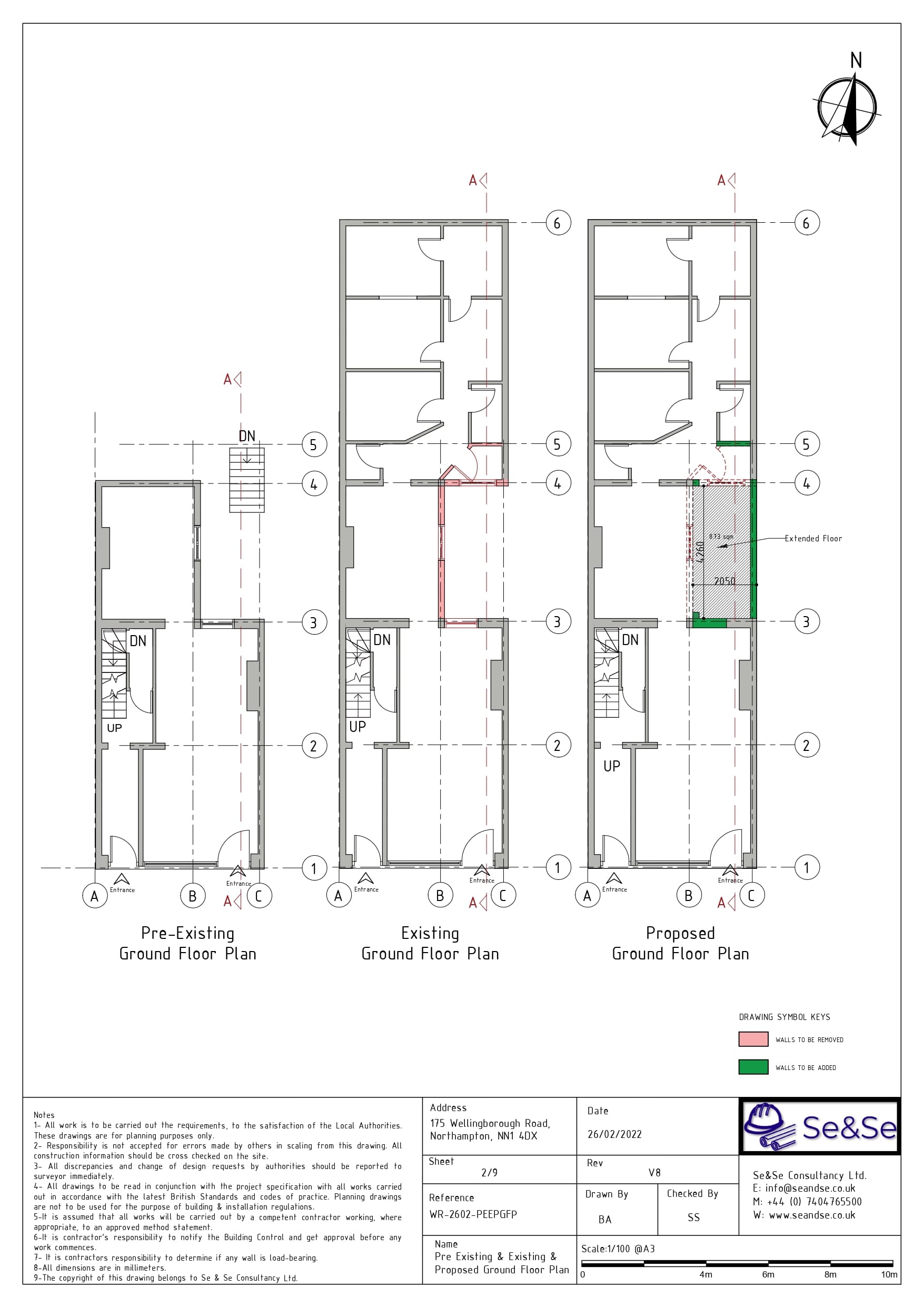
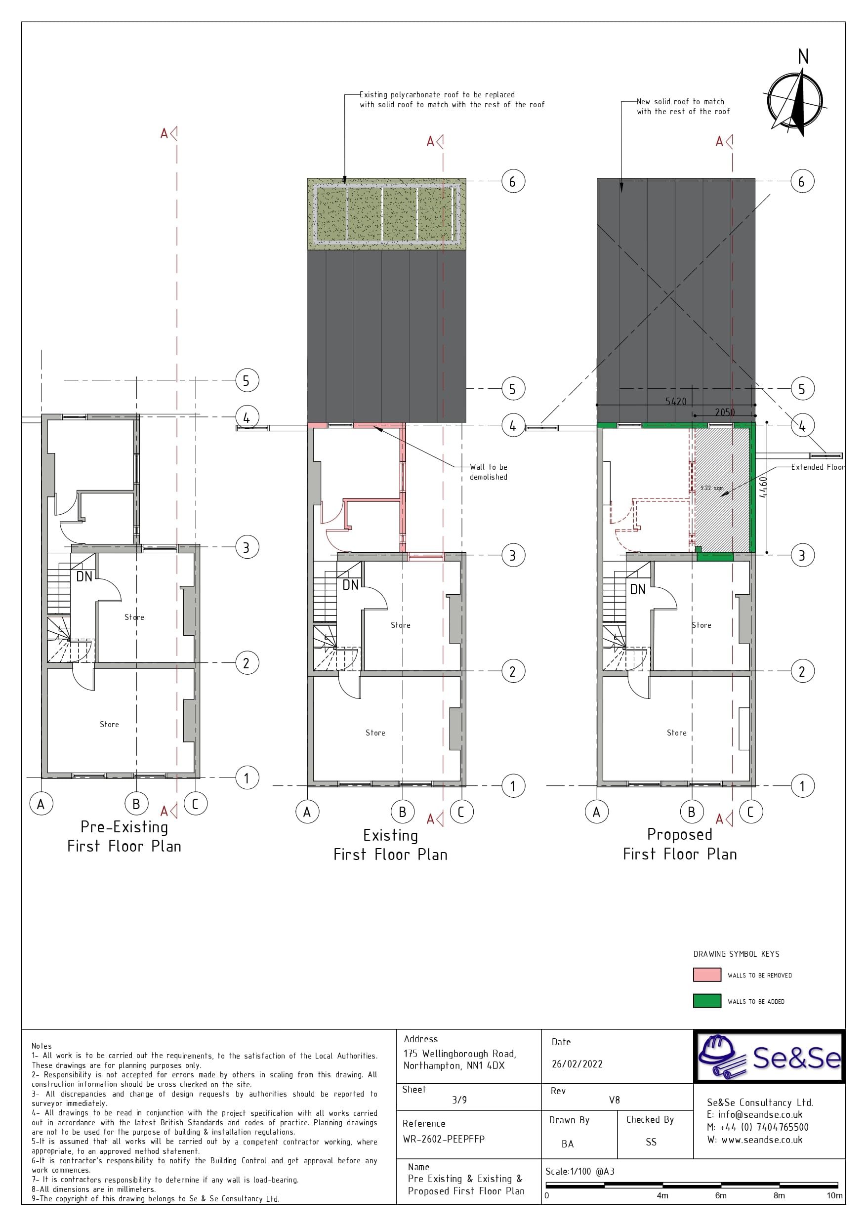
We obtained full planning consent from West Northamptonshire Council for a residential development at 175 Wellingborough Road, Northampton. The proposal included a single-storey rear extension, a three-storey side infill extension, and a new roof for part of the existing single-storey structure.
The scheme was carefully designed to align with Policy S10 & Policy E20 of the Northampton Local Plan, ensuring compliance with local planning guidance on visual amenity, residential impact, and highway safety. With detailed plans and supporting documentation, the application was approved subject to conditions ensuring the extension harmonises with the existing building.
Planning Reference: WNN/2022/1011

 
                                                               
                                                               
                                                               
                                                               
                                                               
                                                               
                                                               
                                                               
                                                               
                                                               
                                                               
                                                              