 
					Project Address
644 High Road Leytonstone, E11 3AA
 
					Council
Waltham Forest Council
 
					Project Type & Year
Commercial & 2024
 
					Project Description
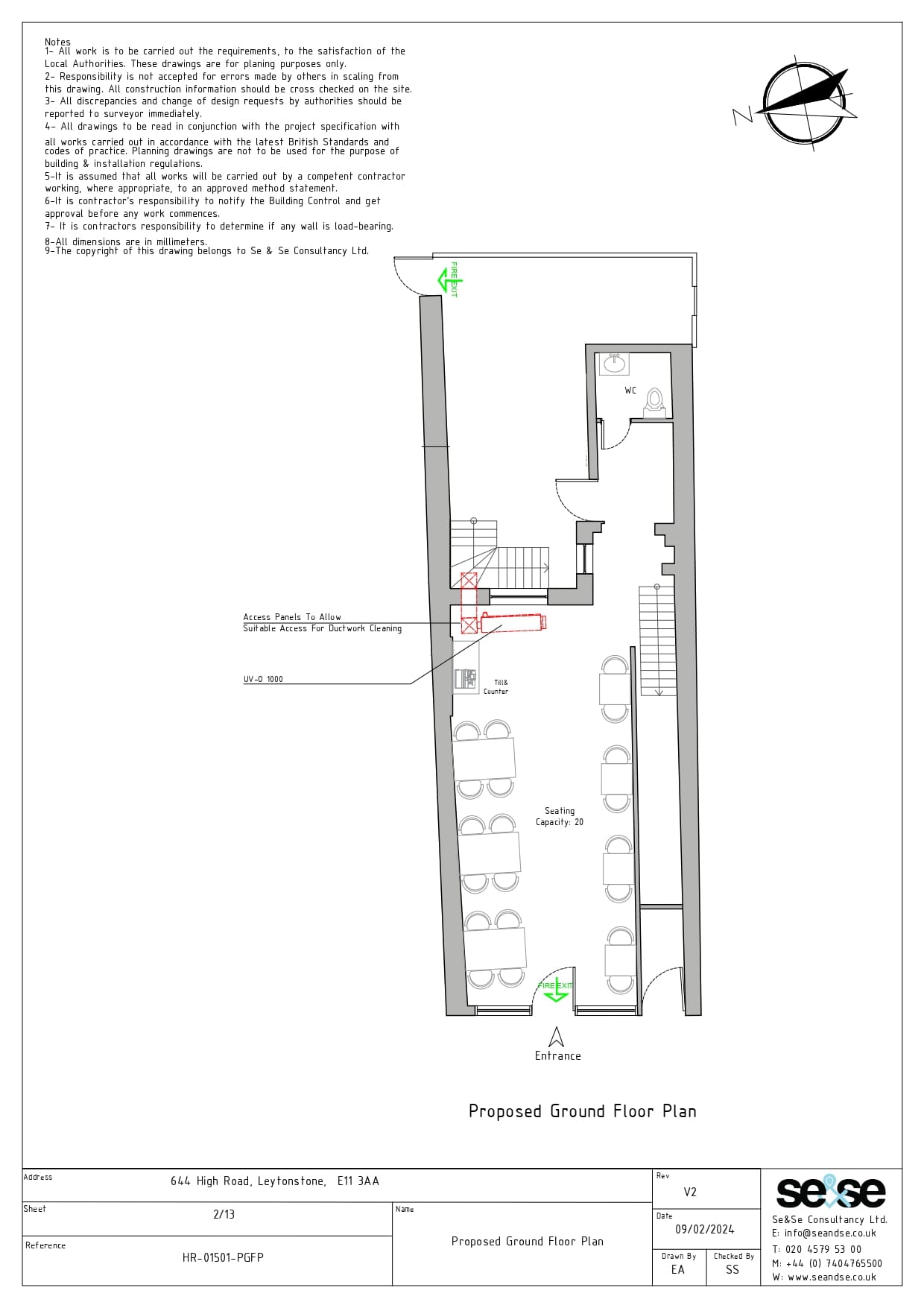
This planning application was prepared to support the installation of a ventilation and extraction system to the rear elevation of the property. The proposal was carefully designed to meet operational requirements while ensuring compliance with environmental and acoustic standards.
A comprehensive package of supporting documentation was prepared, including detailed technical drawings, ventilation and odour control specifications, design and access statements, and a noise impact assessment. These documents formed the basis of the successful planning approval granted by Waltham Forest London Borough Council on 6 June 2024.
Planning reference:
240386

 
                                                               
                                                               
                                                               
                                                               
                                                               
                                                               
                                                               
                                                               
                                                               
                                                               
                                                               
                                                               
                                                               
                                                               
                                                               
                                                              