545, Cranbrook Road, Ilford,IG2 6HE
London Borough of Redbridge
Commercial & 2020
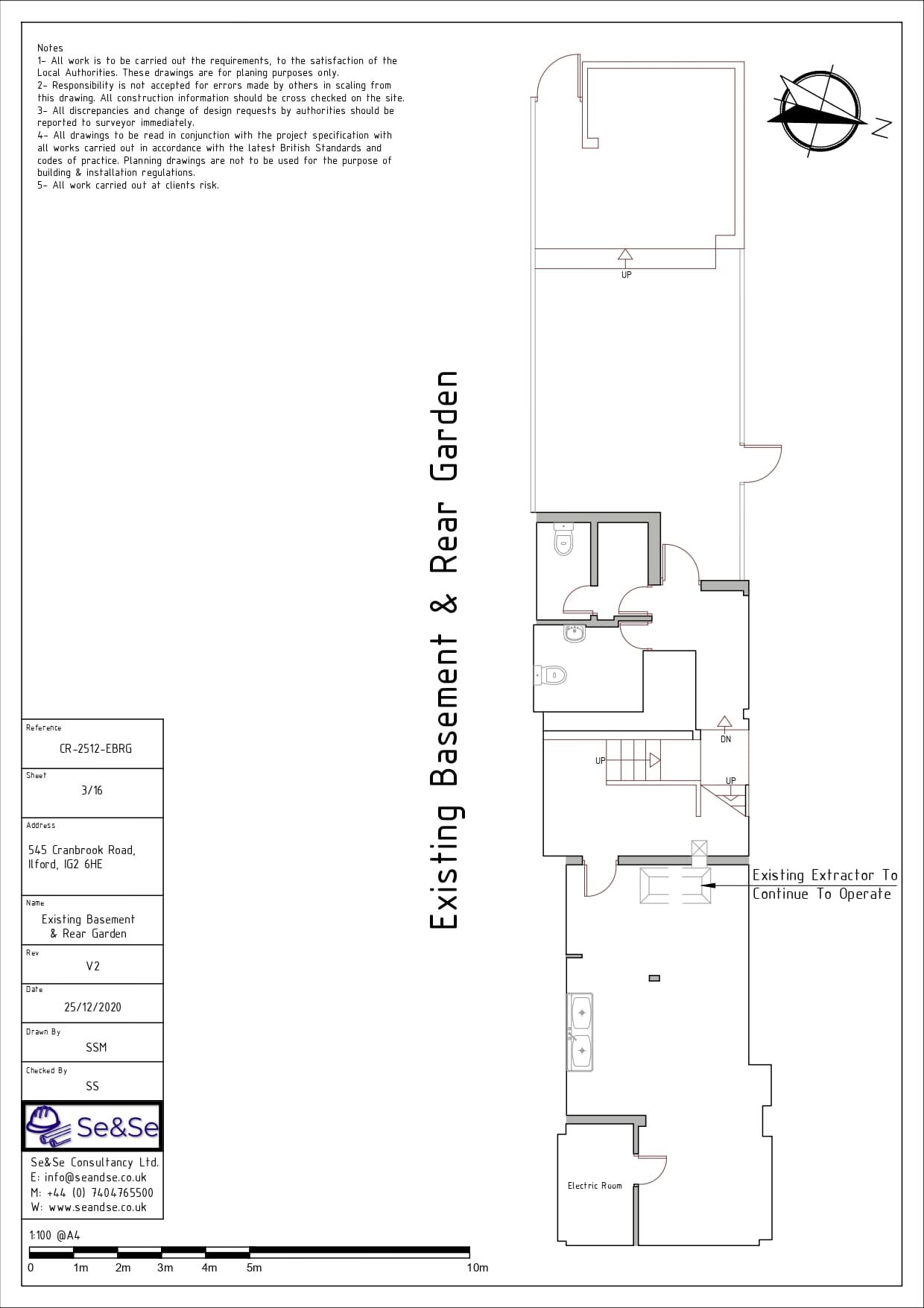
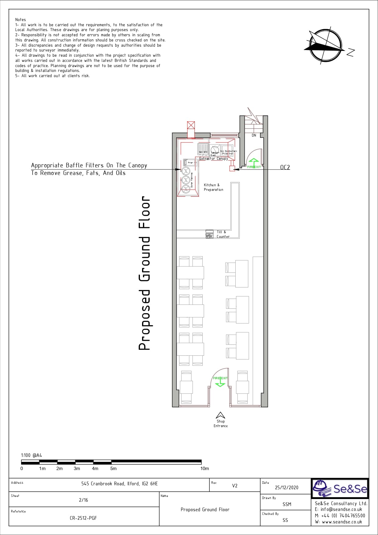
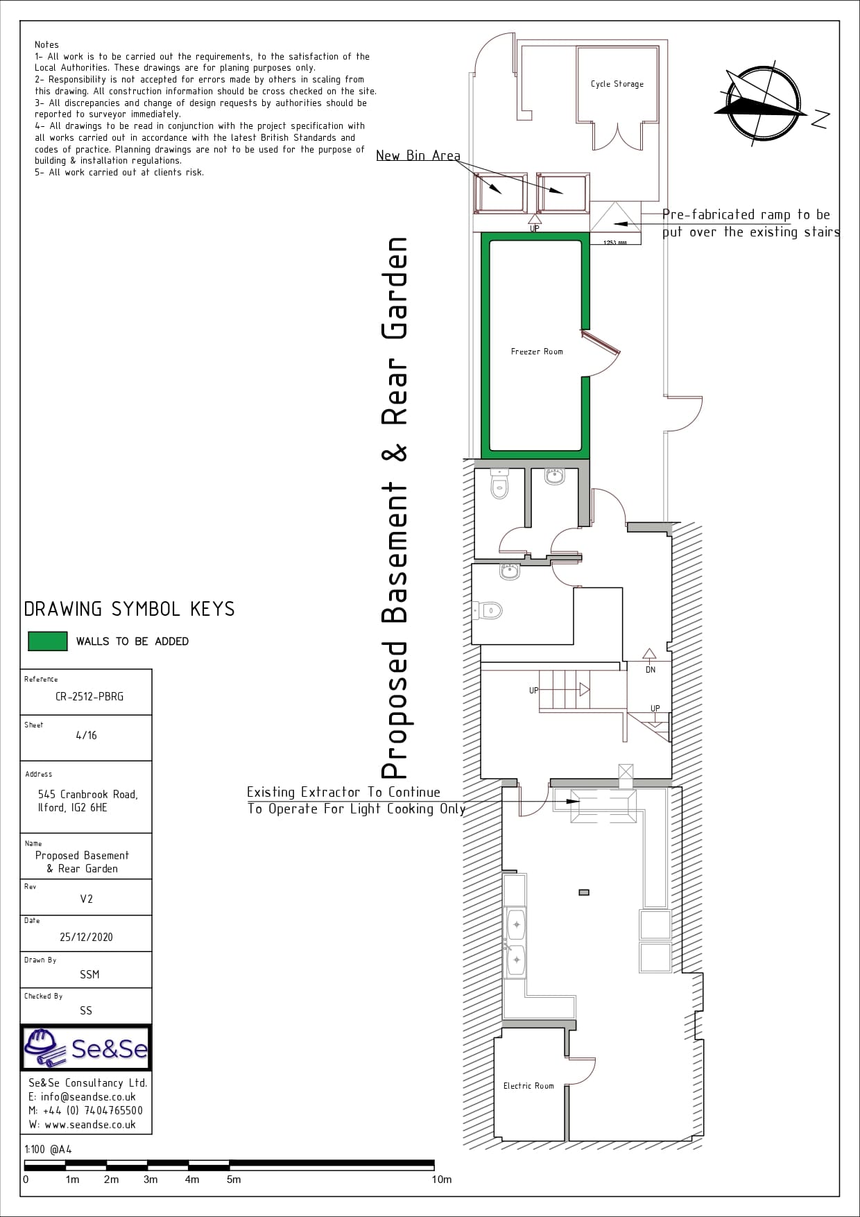
Single storey rear extension. Installation of a extraction unit to rear elevation
Planning reference:
1633/21