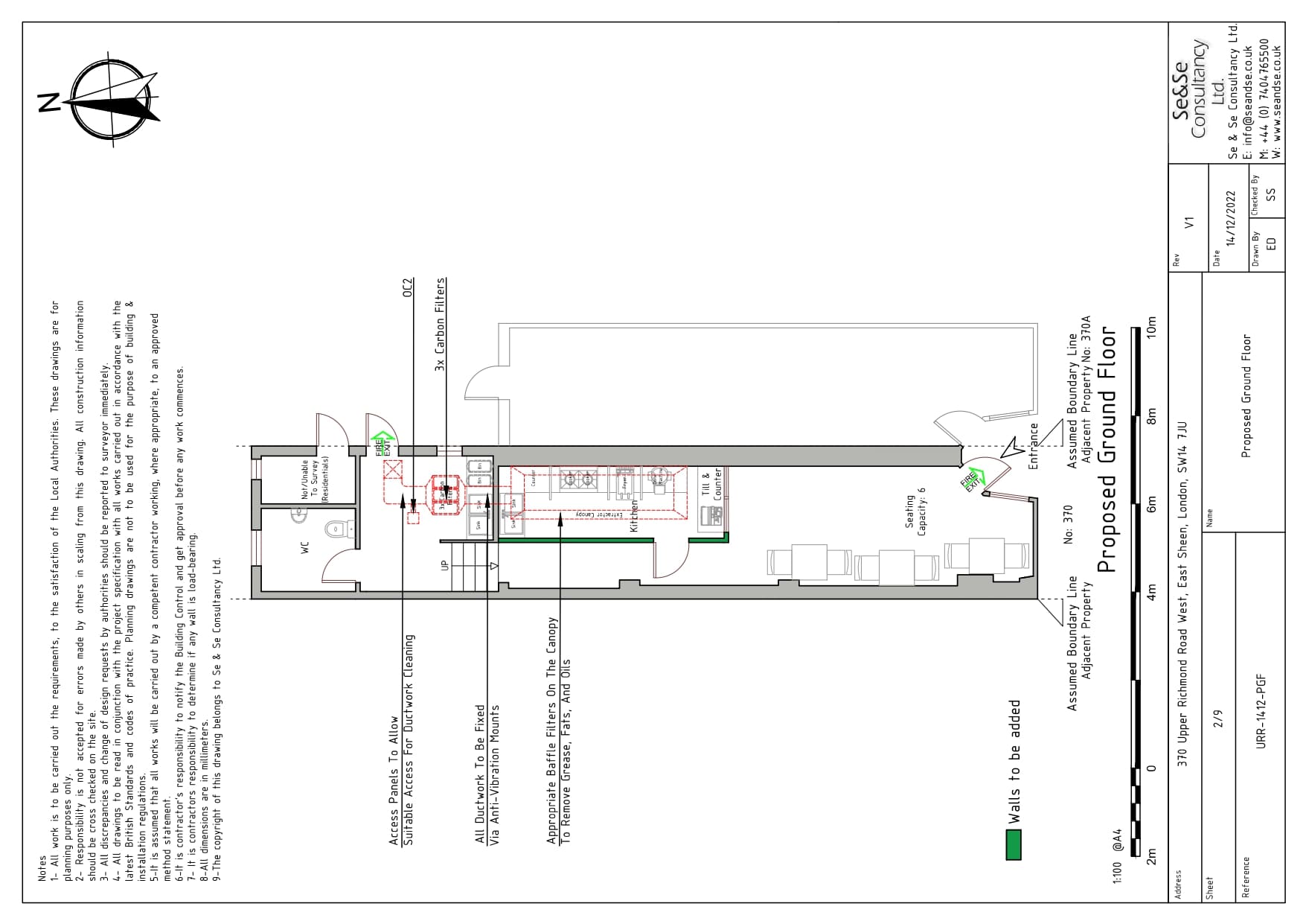
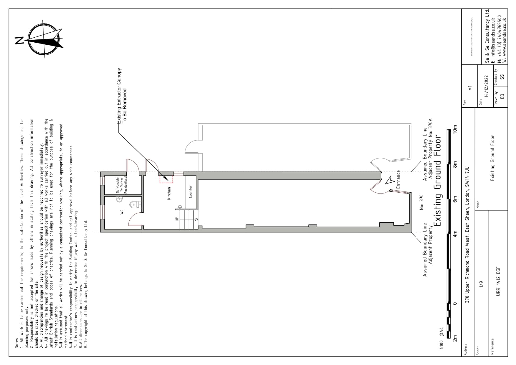
370 Upper Richmond Road West East Sheen London SW14 7JU
London Borough of Richmond Upon Thames
Commercial & 2023
Installation of Extraction system to Rear elevation
Planning reference:
23/0712/FUL