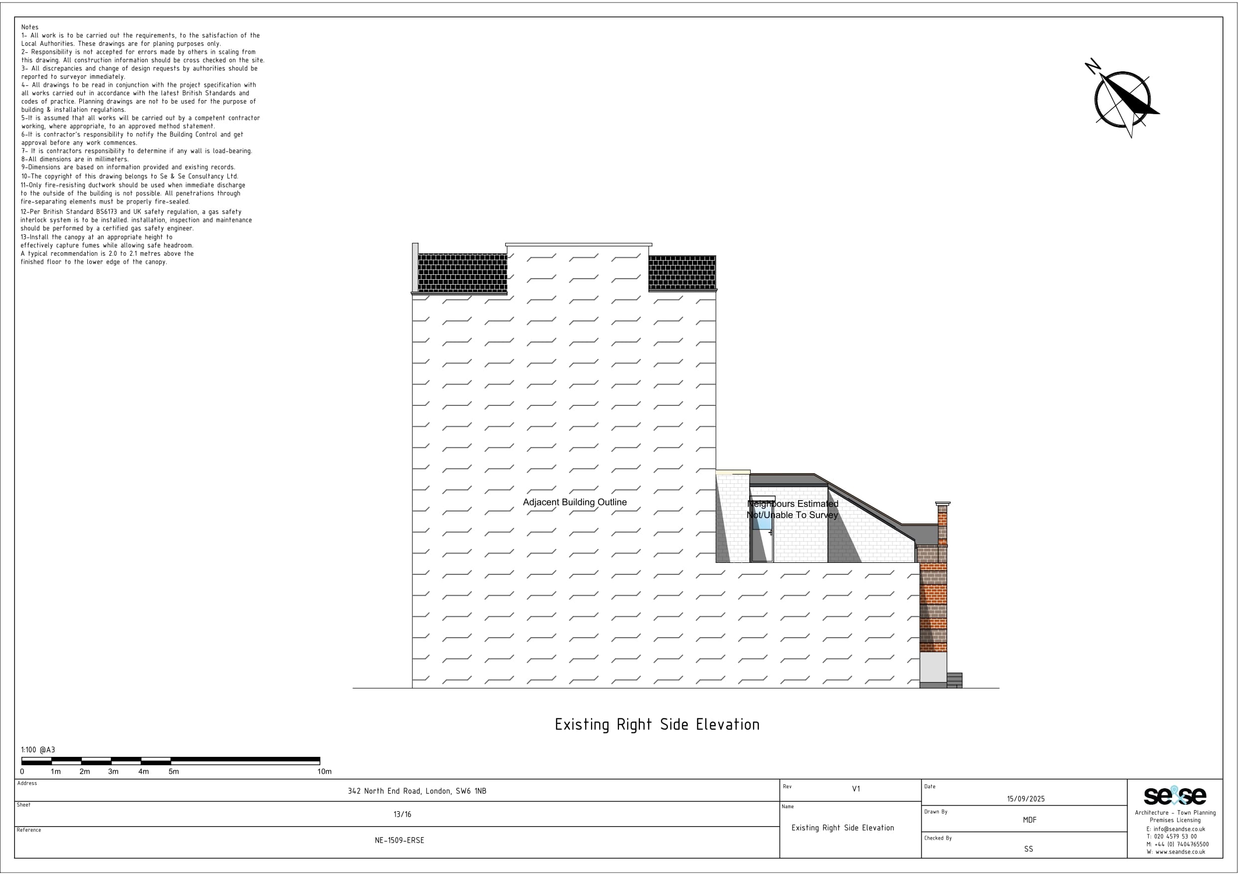
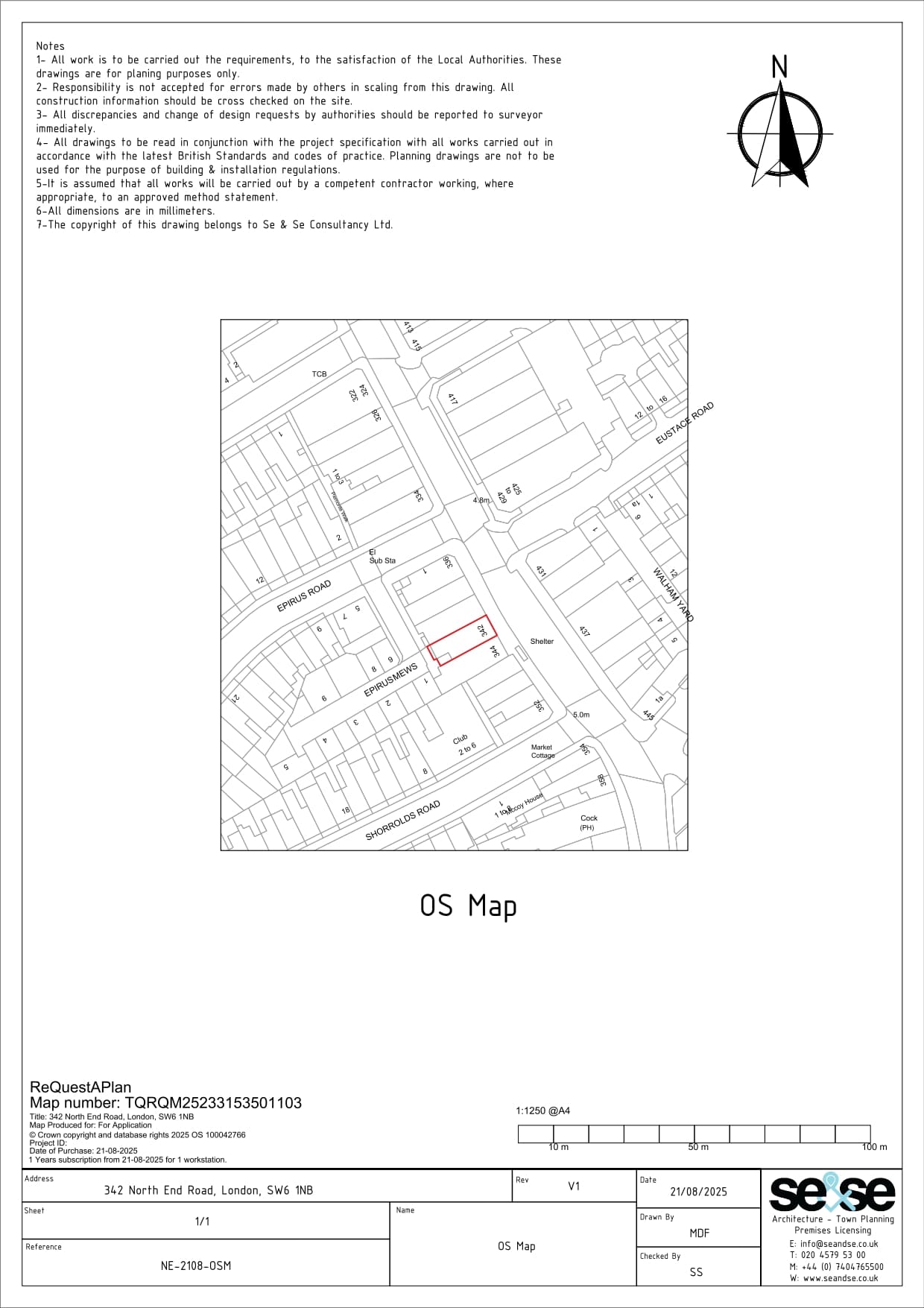
342 North End Road London, SW6 1NB
London Borough of Hammersmith and Fulham
Commercial & 2025
Installation of extraction/ventilation duct above the roof of upper ground floor back addition at the rear of the building