 
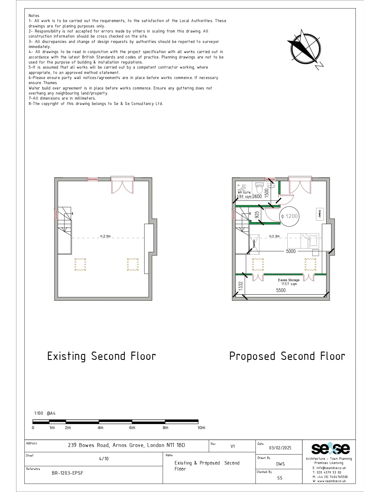
					Project Address
239 Bowes Road London N11 1BD
 
					Council
Enfield Council
 
					Project Type & Year
Residential & 2025
 
					Project Description
We successfully obtained planning permission for the conversion of a single dwelling house (Use Class C3) to a House in Multiple Occupation (Use Class C4) at 239 Bowes Road, London N11.
The project involved comprehensive planning documentation including Location Plans, Transport Impact Assessment, Design and Access Statement, and Flood Risk Assessment. Planning approval was granted by Enfield Council in May 2025, enabling the transformation of the property to provide quality multi-occupancy residential accommodation
Planning reference: 25/00828/FUL

 
                                                               
                                                               
                                                               
                                                               
                                                               
                                                               
                                                               
                                                               
                                                               
                                                               
                                                               
                                                              