202 Haverstock Hill London NW3 2AG
Camden Council
Commercial & 2025
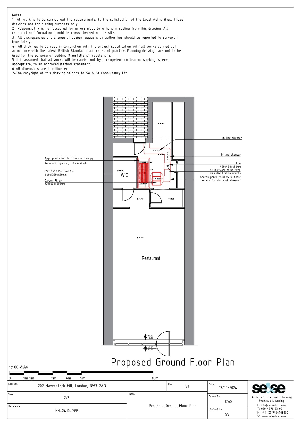
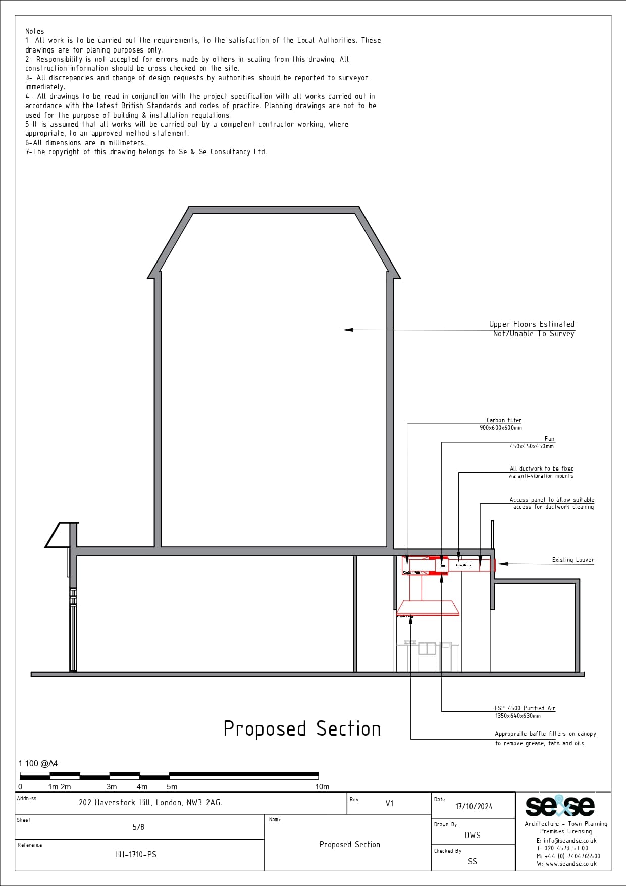
Installation of a kitchen extraction and ventilation system.
Planning reference:
2024/4907/P