19 – 21 Pitfield Street, London, N1 6HB
London Borough of Hackney
Commercial & 2025
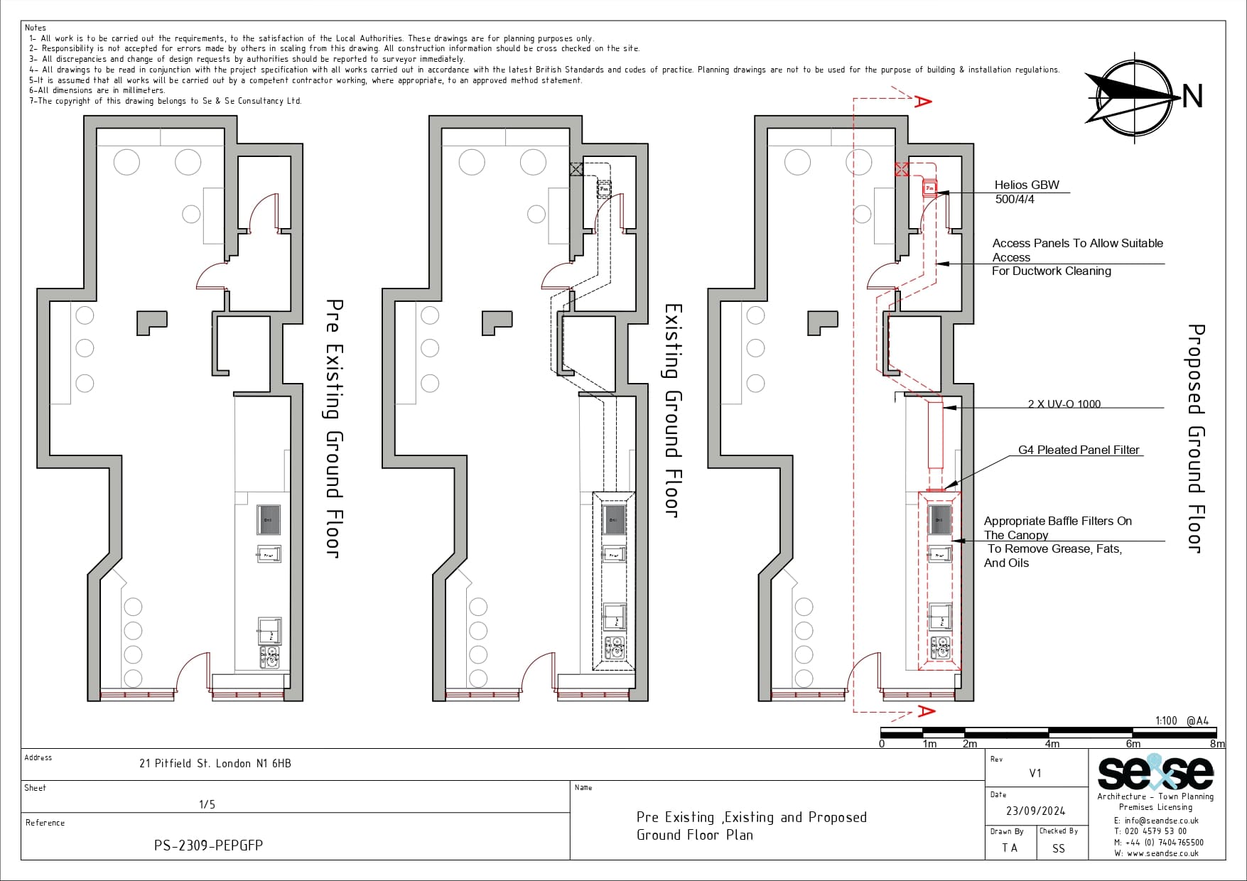
Installation of a kitchen extraction/ventilation system
Planning reference:
2024/2087