 
					Project Address
187, Morland Road, Croydon, CR0 6HD
 
					Council
London Borough of Croydon
 
					Project Type & Year
Commercial & 2025
 
					Project Description
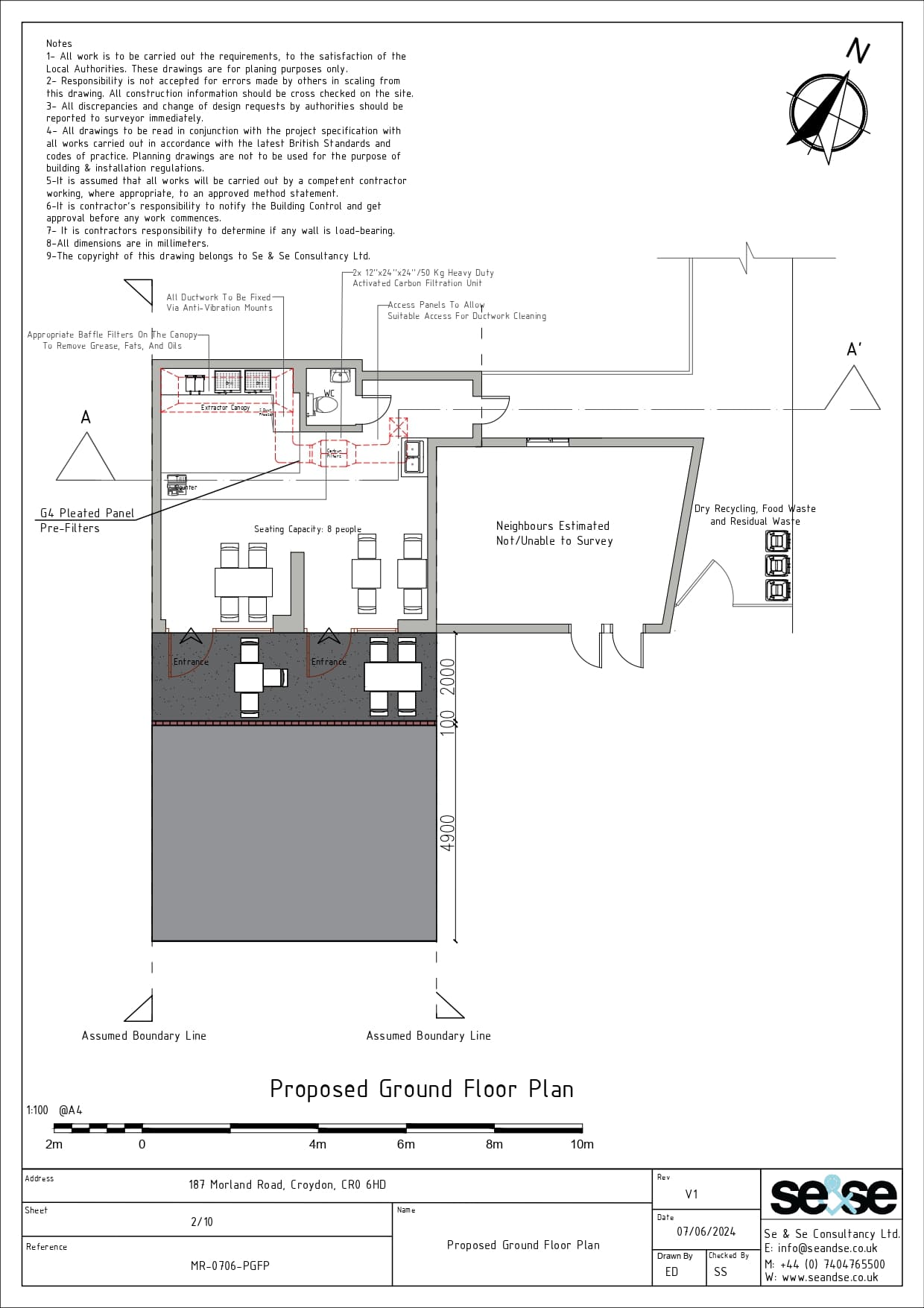
We successfully obtained full planning permission from the London Borough of Croydon for the installation of a kitchen extraction/ventilation system and alterations to the shop front at 187 Morland Road, Croydon. Acting on behalf of the applicant, our team ensured the application met all regulatory standards and local planning requirements, resulting in a smooth approval issued on 25th March 2025.
To support the application, we prepared and submitted clear, compliant technical documentation, including architectural drawings MR-0209-BP 1/1 REV V1 and MR-0706-EGFP, which outlined the full scope of works. This project highlights our ability to deliver practical planning solutions for small commercial premises involving ventilation systems and façade modifications.
Planning reference:
24/02007/FUL

 
                                                               
                                                               
                                                               
                                                               
                                                               
                                                               
                                                               
                                                               
                                                               
                                                               
                                                               
                                                              