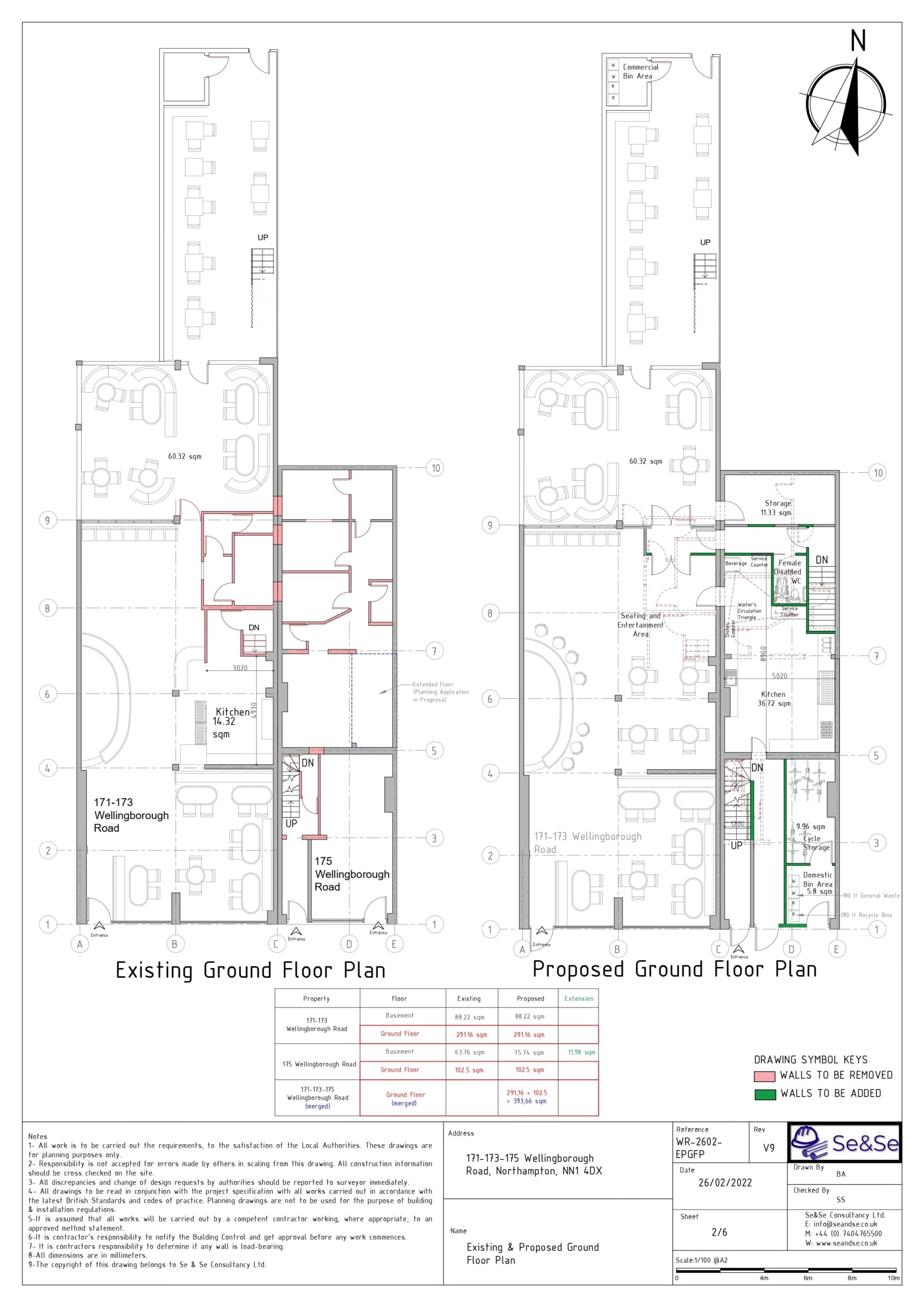
175 WELLINGBOROUGH ROAD NORTHAMPTON

Other projects for this address