 
					Project Address
173 Upper Tooting Road, London, SW17 7TJ
 
					Council
Wandsworth Council
 
					Project Type & Year
Commercial & 2023
 
					Project Description
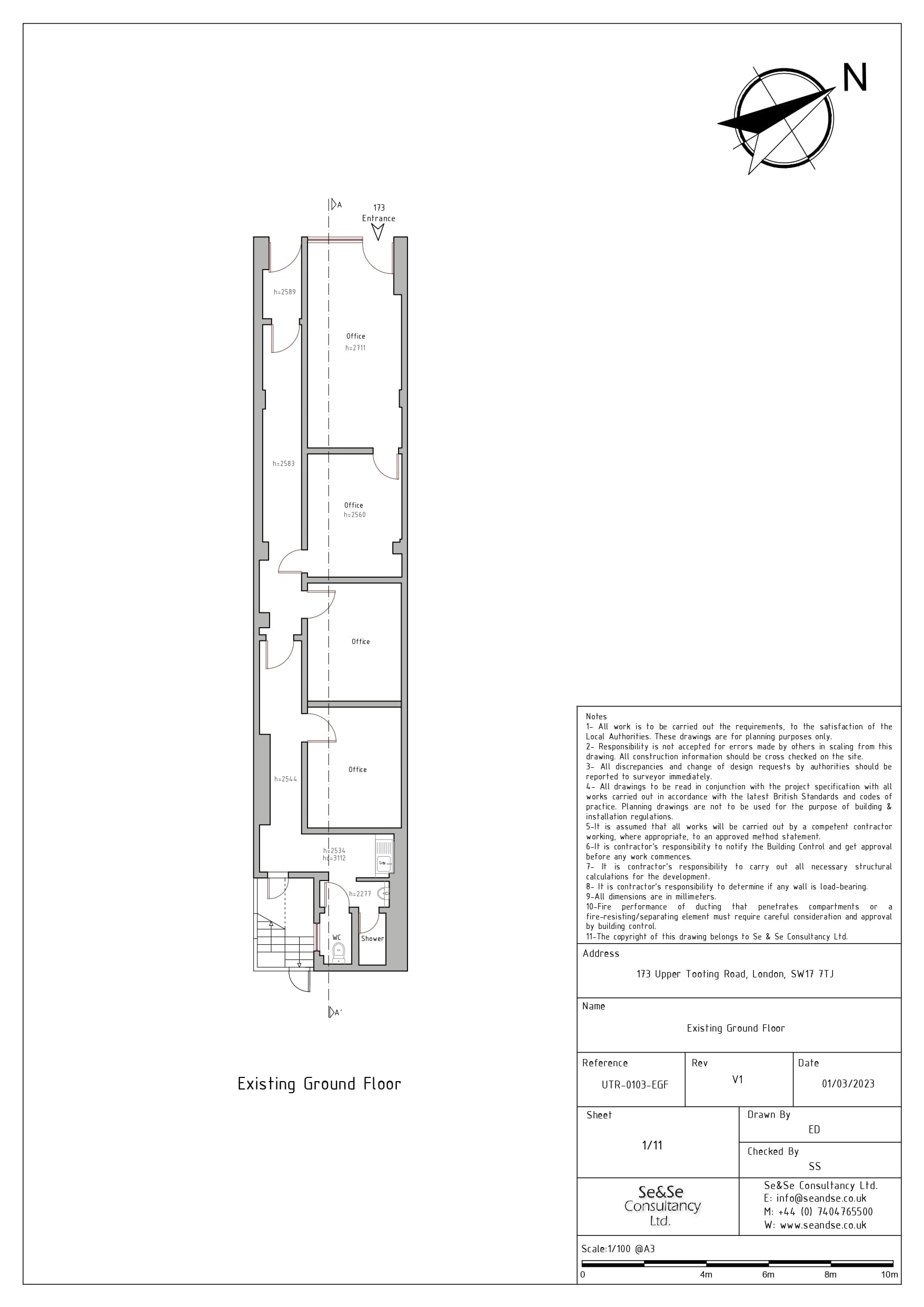
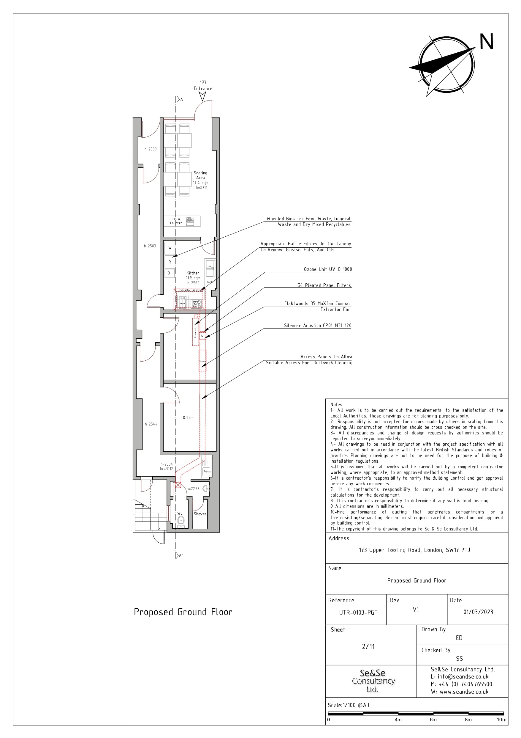
We secured planning approval from Wandsworth Council for the installation of an extract duct to the rear of a commercial property at 173 Upper Tooting Road, London.
The application was supported by a Ventilation System Report, a Noise Impact Assessment, and a Fire Safety Statement, ensuring compliance with local planning policies and safeguarding surrounding residential amenity. The proposal was reviewed under the Town and Country Planning Act 1990 and approved subject to conditions.
This successful outcome demonstrates our expertise in delivering planning consents for commercial extraction and ventilation systems in Wandsworth and across London, enabling food businesses to operate safely and within regulatory standards.
Planning reference: 2023/1175

 
                                                               
                                                               
                                                               
                                                               
                                                               
                                                               
                                                               
                                                               
                                                               
                                                               
                                                               
                                                               
                                                              