 
					Project Address
16 Exmouth Market, London, EC1R 4QE
 
					Council
Islington Council
 
					Project Type & Year
Commercial & 2024
 
					Project Description
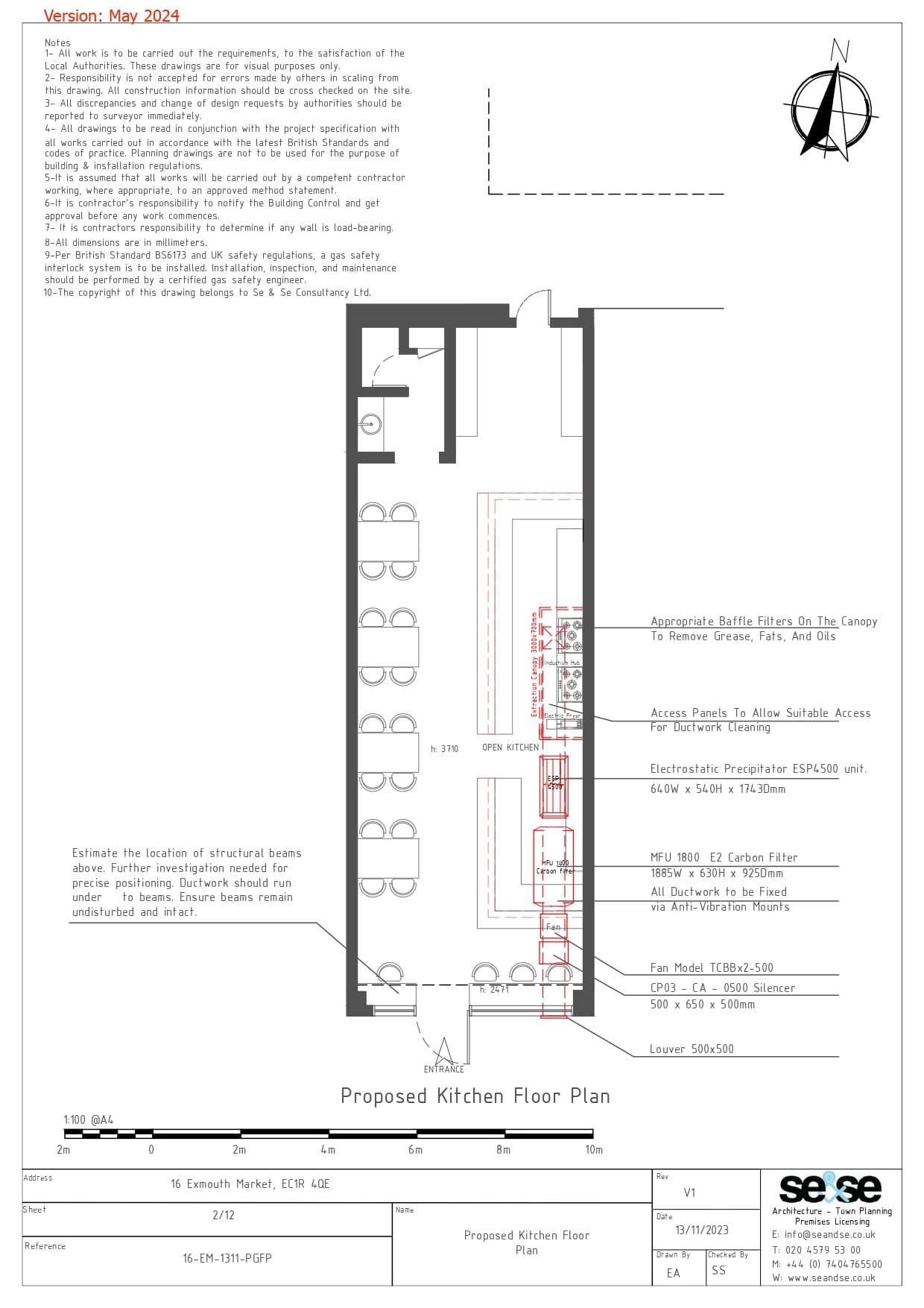
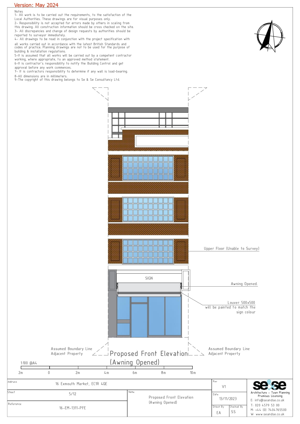
Our team successfully secured full planning permission from Islington Council for the change of use from a pharmacy to a restaurant at 16 Exmouth Market, London. The application included the installation of a new extraction system and a bespoke awning above the shopfront. The project retained its classification within Use Class E and met the local authority’s design and environmental standards.
As part of the submission, we prepared a comprehensive suite of supporting documents, including a detailed Design & Access Statement, Sustainable Design & Construction Statement, and a robust Specification and EMAQ Air Quality Report. Technical brochures for the proposed Kitchen Extract MFU and ESP systems (Purified Air) were also included to demonstrate compliance with environmental performance standards. The application was approved with conditions, reflecting our commitment to well-documented, sustainable urban development
Planning reference: P2023/3447/FUL

 
                                                               
                                                               
                                                               
                                                               
                                                               
                                                               
                                                               
                                                               
                                                               
                                                               
                                                               
                                                               
                                                              