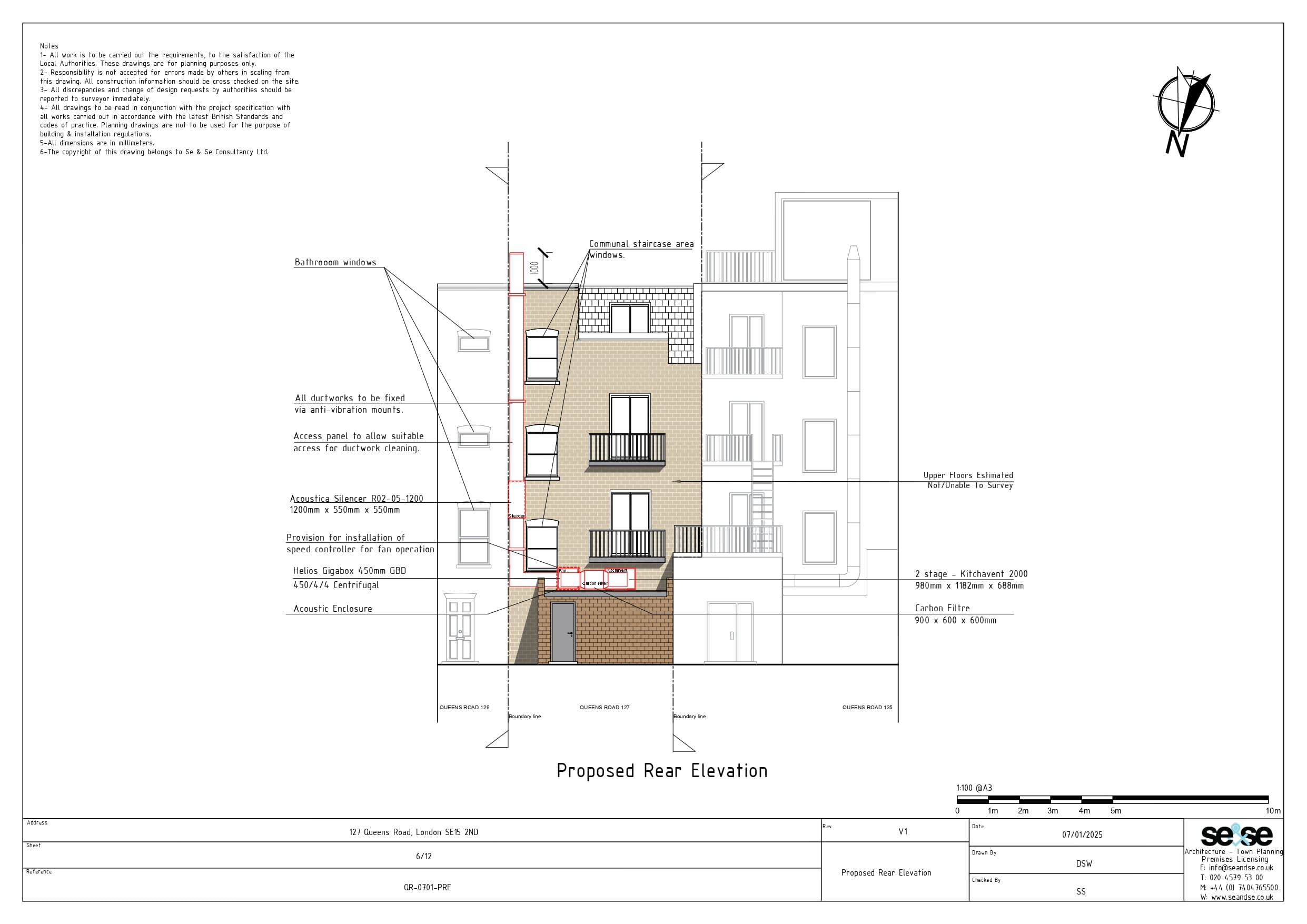
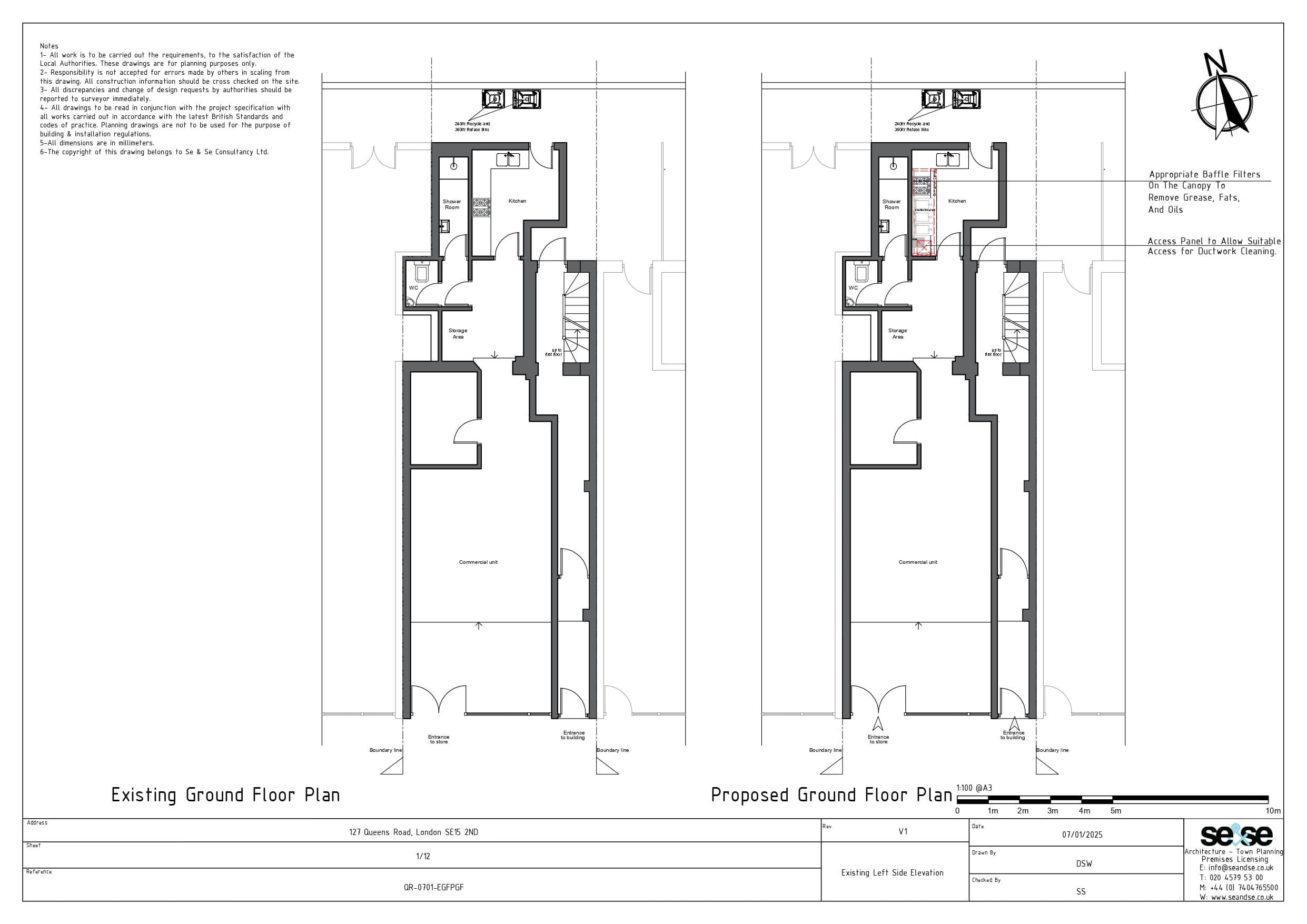
127 Queens Road London Southwark SE15 2ND
Southwark Council
Commercial & 2025
Installation of Extraction / ventilation system
Planning reference:
25/AP/0279